Einziehen und Wohlfühlen: „Familienfreundliche Doppelhaushälfte mit Garten“
21465 Reinbek, Doppelhaushälfte zum Kauf
Referenz
Dieses Objekt wurde bereits erfolgreich vermittelt.
Objektbeschreibung
Beschreibung
Die hier angebotene Immobilie stammt aus dem Jahr 2012 und wurde in massiver Bauweise errichtet. Von außen präsentiert sich das Objekt mit rot-buntem Klinker und anthrazitfarbenen Dachziegeln auf dem Walmdach.
Die weißen Kunststofffenster sind allesamt dreifach-isolierverglast und verfügen über elektrische Außenjalousien im Erdgeschoss.
Auf einer Gesamtwohnfläche von ca. 106 m² verteilen sich vier unterschiedlich große Zimmer auf zwei Geschosse.
Die Beheizung erfolgt über eine Gaszentralheizung vom Hersteller Viessmann und die Warmwasserversorgung wird durch eine Solarthermieanlage unterstützt.
Insgesamt befindet sich die Immobilie in einem sehr guten und technisch einwandfreien Zustand.
Neben der Gartenfläche steht den neuen Bewohnern ein Carport mit angrenzendem Geräteschuppen zur Verfügung.
Ausstattung
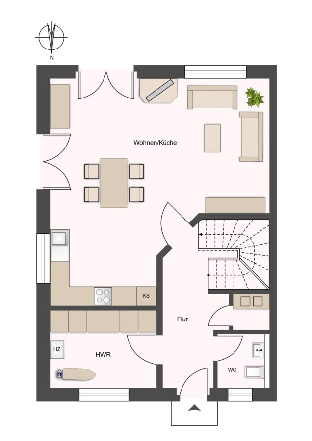
Mit Betreten des Hauses gelangen Sie auf einen länglich verlaufenden Flur, von dem alle Zimmer im Erdgeschoss abgehen.
Alle Wohnräume sind mit einem einheitlichen Laminatfußboden ausgestattet und das Erdgeschoss kann darüber hinaus mit einer komfortablen Fußbodenheizung punkten.
Rechter Hand ist ein hell gefliestes Gäste-WC mit Fenster untergebracht.
Im Hauswirtschaftsraum zur Linken ist die gesamte Hausversorgung wie auch die Anschlüsse für die Waschmaschine und den Trockner untergebracht.
Weiter geradeaus gelangen Sie in den lichterfüllten Wohn- und Essbereich mit offener Wohnküche, der gleichzeitig den Mittelpunkt des Hauses bildet.
Die Küche ist, ausgestattet mit elektrischen Geräten der Firma AEG, mit weißen Hochglanzfronten und einer Arbeitsplatte in Holzoptik sehr modern gestaltet und lässt mit der Ausstattung keinerlei Wünsche offen. Dazu zählt ein Induktionskochfeld mit Abluft, ein Backofen in Stehhöhe, eine Geschirrspülmaschine sowie ein Kühlschrank mit praktischer Gefrierkombination. Ein Fenster sorgt für tolle Lichtverhältnisse und eine gute Belüftung nach dem Kochen.
Vom Wohnbereich aus gelangen Sie auf die Süd-Terrasse und den dahinterliegenden Garten. Die Terrasse ist mit einer überbreiten, eltektrischen Markise ausgestattet und sorgt so für ausreichend Beschattung.
Über eine offene Holztreppe führt der Weg ins Obergeschoss, welches drei Zimmer sowie ein Badezimmer beherbergt.
Das größte der drei Zimmer eignet sich sehr gut als Elternschlafzimmer, während sich die anderen beiden Räume beispielsweise als Kinderzimmer, Gästezimmer oder Homeoffice nutzen ließen.
Das Vollbad mit seperater Dusche ist großzügig aufgeteilt und der dunkle Fußboden bietet einen sehr schönen, modernen Kontrast zu den weißen Sanitärobjekten.
Sonstiges
Das ca. 295 m² große und nach Süden ausgerichtete Grundstück ist pflegeleicht angelegt und bietet verschiedene Nutzungsmöglichkeiten.
Eine sonnenverwöhnte Terrasse mit Markise lädt zu entspannten Stunden mit Familie und Freunden ein. Es gibt einen gemauerten Sichtschutz zur benachbarten Haushälfte und ein praktischer Gartenzaun grenzt das gesamte Grundstück ein.
Die angebotene Doppelhaushälfte eignet sich besonders für Familien mit Kindern, die einen modernen Wohnstandard mit vielfältigen Nutzungsmöglichkeiten in ruhiger Wohnlage zu schätzen wissen.
Lage
Reinbek - die "Stadt im Grünen", liegt im Speckgürtel von Hamburg und bietet derzeit ca. 28.000 Einwohnern eine attraktive Infrastruktur mit Ärzten, Apotheken, Restaurants, Supermärkten sowie Dienstleistungsbetrieben aus allen Branchen. Kindergärten, Grundschulen und weiterführende Schulen sind ebenso vorhanden wie ein vielfältiges Angebot an Kindertageseinrichtungen.
Das Reinbeker Schloss, das Theaterforum, die Volkshochschule, ein Hallenbad und ein Natursee sowie verschiedene Vereine, Verbände und mehrere Sportstätten in der unmittelbaren Umgebung bieten attraktive Möglichkeiten zur Freizeitgestaltung. Mit dem St. Adolf-Stift verfügt Reinbek auch über ein modernes Krankenhaus. Der nahgelegene Sachsenwald, das größte Waldgebiet Schleswig-Holsteins, lädt zu Ausflügen ein.
Die Hamburger Innenstadt steuert man mit dem PKW über die B5 oder mit der S-Bahn in ca. 30 Fahrminuten an. Die Auffahrten zur A24 Hamburg-Berlin und zur A1 Hamburg-Lübeck sind ebenfalls schnell erreichbar.
Die dargestellte Position der Immobilie ist nur eine ungefähre Angabe.















