In gepflegter Lage: „Vermieteter Atrium-Bungalow mit Garage in Oststeinbek“
22113 Oststeinbek, Reihenmittelhaus zum Kauf
Kontaktdaten
-
NameHerr Ben Bode
-
FirmaPIPPING Immobilien GmbH & Co. KG - Filiale Reinbek
-
AnschriftBahnhofstraße 12
21465 Reinbek -
E-Mail
-
Telefon
-
Telefon
-
Mobil
-
Fax+49 40 40 11 33 6 - 29
Objektdaten
-
Objekt IDBEB-259712496
-
ObjekttypenHaus, Reihenmittelhaus
-
Adresse22113 Oststeinbek
-
Wohnfläche ca.118 m²
-
Grundstück ca.372 m²
-
Zimmer4
-
Wesentlicher EnergieträgerGas
-
Baujahr1968
-
Garage1 Stellplatz
-
ProvisionspflichtigJa
-
Käuferprovision3,125 % inkl. USt.
-
Kaufpreis395.000 EUR
Ausstattung / Merkmale
- ✓ Garage
Energieausweis
-
EnergieausweistypBedarfsausweis
-
Gültig bis11.09.2025
-
GebäudeartWohngebäude
-
Baujahr lt. Energieausweis2017
-
PrimärenergieträgerGas
-
Endenergiebedarf287,90 kWh/(m²·a)
-
EnergieeffizienzklasseH
Objektbeschreibung
Beschreibung
Bei der hier angebotenen Immobilie handelt es sich um ein ebenerdig konzipierten Atrium-Bungalow mit angeschlossener Garage, welcher im Jahre 1968 in solider Massivbauweise errichtet wurde.
Die Immobilie präsentiert sich in einer zeitlosen, teils weiß gestrichenen Klinkerfassade, welche durch braune Holzfenster mit Isolierverglasung ergänzt wird.
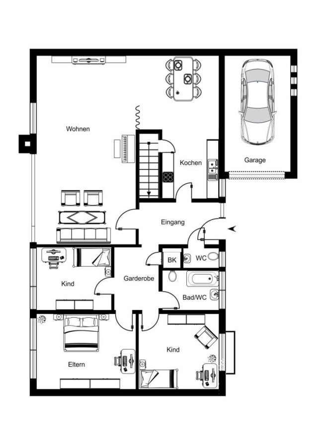
Auf einer Gesamtwohnfläche von ca. 118 m² erstrecken sich vier Zimmer, eine Küche, ein Badezimmer, ein Gäste-WC sowie ein Abstellraum. Der Grundriss ist funktional gegliedert und überzeugt durch eine klare Trennung von Wohn- und Schlafbereich.
Die Beheizung sowie die Warmwasserversorgung erfolgen über eine Gaszentralheizung aus dem Jahre 2017.
Die an das Wohnhaus angrenzende Garage gewährleistet ein hohes Maß an Komfort sowie kurze Wege im Alltag. Auf der Zufahrt vor der Garage stehen darüber hinaus zusätzliche Stellflächen für weitere Fahrzeuge zur Verfügung.
Die Immobilie inklusive Garage ist derzeit vermietet und erwirtschaftet Jahresnettomieteinnahmen in Höhe von EUR 10.800,00.
Ausstattung
Zum Schutz der Privatsphäre der Bewohner werden ausschließlich Außenaufnahmen gezeigt:
Beim Betreten der Immobilie gelangen Sie über den Eingangsbereich in die zentral gelegene Diele mit Garderobe. Von hier aus sind alle Räume des Hauses direkt erreichbar.
Der großzügige Wohn- und Essbereich bildet das Herzstück des Hauses. Großzügige Fensterflächen sorgen für eine angenehme Lichtdurchflutung und ermöglichen den direkten Zugang zur Terrasse. Die halboffene Küche mit angrenzendem Essplatz ist optimal in den Wohnbereich integriert und erlaubt kommunikatives und modernes Wohnen.
Der Schlaftrakt umfasst ein Elternschlafzimmer sowie zwei weitere, gut geschnittene Zimmer, die flexibel als Kinder-, Arbeits- oder Gästezimmer genutzt werden können. Das große Badezimmer ist mit Badewanne, Dusche und WC ausgestattet. Ergänzend steht ein separates Gäste-WC zur Verfügung.
Praktische Details wie ein Abstellraum sowie die kurze Anbindung an die Garage runden das Raumangebot ab. Die Garage selbst bietet Platz für ein Fahrzeug und zusätzlichen Stauraum für Fahrräder oder Gartengeräte.
Die klare Struktur der Räume, die komfortable Ausstattung sowie die funktionale Verbindung von Wohnen, Schlafen und Nebenräumen machen diese Immobilie zu einem idealen Zuhause für Familien.
Sonstiges
Das Grundstück umfasst eine Fläche von insgesamt ca. 372 m² und fügt sich harmonisch in die ruhige Wohnumgebung ein.
Der Gartenbereich rund um den zentralen Atriumhof ist praktikabel gestaltet und bietet trotz kompakter Größe eine angenehme Rückzugsmöglichkeit im Freien.
Besonders hervorzuheben sind die angebauten Beete, die Raum für gärtnerische Gestaltungsideen lassen, sei es für Blumen, Kräuter oder saisonales Gemüse.
Die geschützte Lage des Gartens innerhalb der Atriumstruktur schafft eine private und wohnliche Atmosphäre mit hohem Erholungswert.
Ob als grüne Oase, gemütlicher Sitzbereich oder kreatives Gartenprojekt, das Grundstück bietet vielfältige Nutzungsmöglichkeiten für Naturliebhaber und Individualisten.
Lage
Die Gemeinde Oststeinbek liegt in unmittelbarer Nähe des Ostens von Hamburg, direkt zwischen Öjendorf und Glinde. Sämtliche Einkaufsmöglichkeiten des täglichen Bedarfs, wie z.B. der Oststeinbeker Wochenmarkt, das Einkaufszentrum sowie eine sehr gute ärztliche Versorgung sind in unmittelbarer Nähe. Kindergärten, Grundschulen und weiterführende Schulen sind ebenfalls vor Ort. Eine abwechslungsreiche Freizeitgestaltung bieten neben vielen anderen Möglichkeiten auch Tennis- und Reitvereine. Über die BAB 24 erreicht man in ca. 15 PKW-Minuten die Hamburger Innenstadt. In nur 17 Fahrminuten erreicht man mit der U-Bahn (U - Bahnstation Steinfurther Allee) die Hamburger Innenstadt. Eine gute Busanbindung nach Hamburg und direkt nach HH-Bergedorf gibt es selbstverständlich auch.
Die dargestellte Position der Immobilie ist nur eine ungefähre Angabe.







