Hamburg-Lohbrügge: „Charmante Doppelhaushälfte mit Garten in Südausrichtung“
21031 Hamburg, Doppelhaushälfte zum Kauf
Kontaktdaten
-
NameHerr Mika Leon Beyer
-
FirmaPIPPING Immobilien GmbH & Co. KG - Filiale Reinbek
-
AnschriftBahnhofstraße 12
21465 Reinbek -
E-Mail
-
Telefon
-
Telefon
-
Mobil
-
Fax+49 40 40 11 33 6 - 29
Objektdaten
-
Objekt IDMBE-2551012715
-
ObjekttypenDoppelhaushälfte, Haus
-
Adresse21031 Hamburg
-
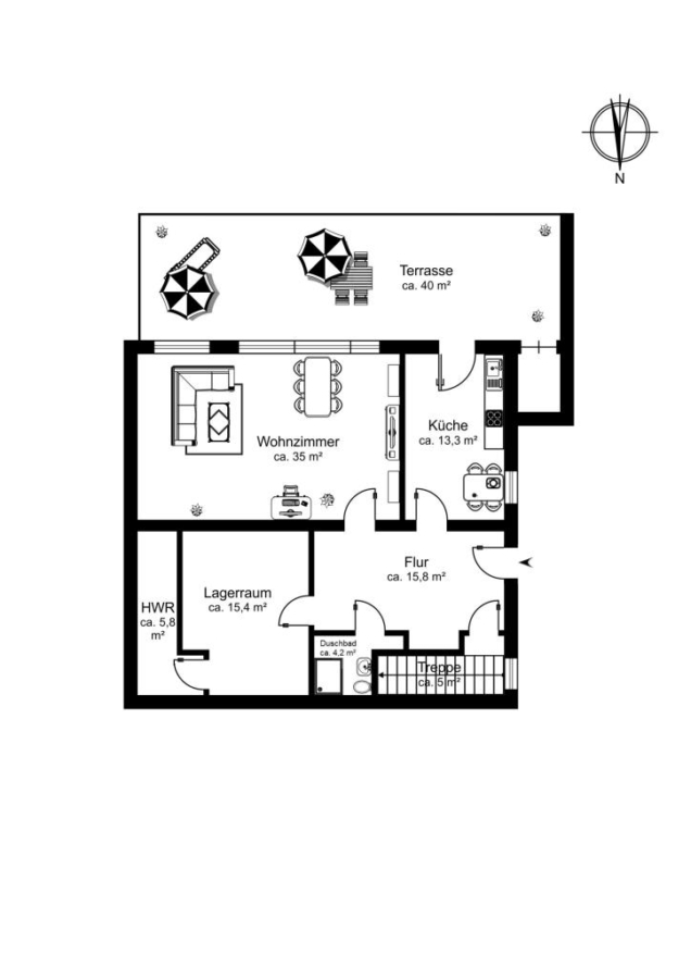
Wohnfläche ca.108 m²
-
Grundstück ca.439 m²
-
Zimmer3
-
Wesentlicher EnergieträgerFernwärme
-
Baujahr1964
-
Stellplatz1 Stellplatz
-
ProvisionspflichtigJa
-
Käuferprovision3,125 % inkl. USt.
-
Kaufpreis425.000 EUR
Ausstattung / Merkmale
- ✓ Außenstellplatz
Energieausweis
-
EnergieausweistypBedarfsausweis
-
Gültig bis26.10.2035
-
GebäudeartWohngebäude
-
Baujahr lt. Energieausweis1964
-
PrimärenergieträgerFernwärme
-
Endenergiebedarf225,30 kWh/(m²·a)
-
EnergieeffizienzklasseG
Objektbeschreibung
Beschreibung
Bei der hier angebotenen Immobilie handelt es sich um eine Atrium-Doppelhaushälfte, welche im Jahre 1964 in massiver Bauweise im Erdgeschoss und einer Holzständerbauweise im Obergeschoss errichtet wurde.
Das Objekt präsentiert sich mit einem Flachdach, einer weißen Klinkerfassade und einer mit Eternitplatten verkleideten Fassade im Obergeschoss.
Die Beheizung sowie die Warmwasserversorgung erfolgen über Fernwärme.
Auf einer Gesamtwohnfläche von ca. 108 m² verteilen sich drei gut geschnittene Zimmer, eine Küche sowie zwei Bäder auf zwei Ebenen.
Der Zustand der Immobilie ist als in Teilen renovierungsbedürftig zu bezeichnen.
Im Hof der Anlage steht den Bewohnern ein Außenstellplatz zum Abstellen eines Fahrzeuges zur Verfügung.
Ausstattung
Über einen überdachten Hauseingang gelangen Sie in den großzügigen Flurbereich, welcher Sie wärmstens empfängt und ausreichend Platz für eine Garderobe bietet.
Rechter Hand befindet sich die Küche, welche mit einer zeitlosen, voll ausgestatteten Einbauküche versehen ist und mit gleich zwei Fenstern für optimale Belüftung und angenehmen Lichteinfall zu überzeugen weiß.
Der Raum geradezu bietet sich als Hauswirtschaftsraum an. Hier lassen sich ideal Vorräte, Haushaltsgeräte und Co. unterbringen. Zudem geht von diesem der Heizungsraum ab, der gleichzeitig als kleine Waschküche dient.
Der gut geschnittene Wohnbereich stellt das Zentrum des Hauses dar – dieser besticht mit großen Fensterelementen sowie Platz für Familie und Freunde. Von hier haben Sie direkten Zugang auf die überdachte Terrasse in Südausrichtung, welche zu sonnigen Stunden einlädt.
Abgerundet wird diese Ebene durch ein stilvolles, mit weißen Wand- und grauen Bodenfliesen versehenes Duschbad.
Über die massive Treppe im Obergeschoss angelangt, erreichen Sie rechter Hand das Elternschlafzimmer, in welchem sich problemlos ein großzügiges Doppelbett unterbringen lässt. Ein separierter Bereich dient praktischerweise als begehbarer Kleiderschrank.
Angrenzend befindet sich das identisch zum Bad im Erdgeschoss geflieste Vollbad, welches mit einem Fenster für optimale Belüftung überzeugt.
Das dritte und letzte Zimmer bietet als Kinder-, Gäste- oder auch Arbeitszimmer vielfältige Nutzungsoptionen.
Die angebotene Immobilie eignet sich hervorragend für Paare oder junge Familien, die auf der Suche nach einem Eigenheim in naturnaher Umgebung von Hamburg sind.
Sonstiges
Das ca. 439 m² große und pflegeleicht angelegte Südgrundstück ist blickdicht eingewachsen und kann mit einer überdachten, gepflasterten Terrasse glänzen. Hier lassen sich wunderbare Grillabende mit der Familie verbringen und entspannte Stunden im Freien genießen.
Die optimale Südausrichtung verspricht das Maximum aus den Sonnenstunden im Norden Deutschlands herauszuholen!
Dank des nachträglich errichteten Anbaus in Form eines kleinen Raumes neben dem Hauseingang können auch Gartengeräte und Co. in dieser Immobilie problemlos verstaut werden.
Im rückwärtigen Grundstücksteil ließe sich optional noch ein Gartenhaus mit zusätzlichem Stauraum errichten.
Lage
Lohbrügge ist ein Stadtteil im Südosten von Hamburg, der zum Bezirk Bergedorf gehört. Sämtliche Infrastruktureinrichtungen wie Kindergärten, alle Schularten, Einkaufsmöglichkeiten für den täglichen Bedarf sowie eine Einkaufspassage mit zahlreichen Fachgeschäften, diverse Ärzte, vielfältige Kultur- und Sportangebote sind in unmittelbarer Nähe bzw. in Bergedorf vorhanden.
Das Naherholungsgebiet Grünes Zentrum mit Kinderspielplätzen, einem Bouleplatz, Grillplätzen und einer Skaterbahn bietet viele Freizeitmöglichkeiten. Im nahegelegenen Sachsenwald sowie in den Boberger Dünen lassen sich ausgedehnte Spaziergänge und Fahrradtouren unternehmen.
In der Hamburger Innenstadt ist man über die B5 oder mit der S-Bahn ab Bergedorf in ca. 25 Minuten. Ein dichtes Busnetz ermöglicht eine schnelle und bequeme Verbindung auch in die angrenzenden Landkreise. Verschiedene Autobahnen (BAB Lübeck-Bremen, Hamburg-Berlin) sind ebenfalls schnell zu erreichen.
Die dargestellte Position der Immobilie ist nur eine ungefähre Angabe.
















