Charmante Doppelhaushälfte in Wentorf: „Ihr neues Zuhause für die Familie“
21465 Wentorf, Doppelhaushälfte zum Kauf
Kontaktdaten
-
NameFrau Rebecca Hans
-
FirmaPIPPING Immobilien GmbH & Co. KG - Filiale Reinbek
-
AnschriftBahnhofstraße 12
21465 Reinbek -
E-Mail
-
Telefon
-
Telefon
-
Mobil
-
Fax+49 40 40 11 33 6 - 29
Objektdaten
-
Objekt IDRH-261112893
-
ObjekttypenDoppelhaushälfte, Haus
-
Adresse21465 Wentorf
-
Wohnfläche ca.111 m²
-
Grundstück ca.472 m²
-
Zimmer4
-
HeizungsartZentralheizung
-
Wesentlicher EnergieträgerGas
-
Baujahr1984
-
Zustandgepflegt
-
ProvisionspflichtigJa
-
Käuferprovision3,125 % inkl. USt.
-
Kaufpreis530.000 EUR
Ausstattung / Merkmale
- ✓ Badewanne
- ✓ Balkon/Terrasse Südwest
- ✓ Carport
- ✓ Dusche
- ✓ Einbauküche
- ✓ Fliesenboden
- ✓ Gäste-WC
- ✓ Keller
- ✓ Tageslichtbad
- ✓ Teppichboden
Energieausweis
-
EnergieausweistypBedarfsausweis
-
Gültig bis15.01.2036
-
GebäudeartWohngebäude
-
Baujahr lt. Energieausweis2004
-
PrimärenergieträgerGas
-
Endenergiebedarf161,20 kWh/(m²·a)
-
EnergieeffizienzklasseF
Objektbeschreibung
Beschreibung
Herzlich willkommen in dieser charmanten Doppelhaushälfte, welche Ihnen aufgrund der guten Raumaufteilung ein ideales Zuhause für die ganze Familie bietet. In verkehrsberuhigter Lage am Ende einer Sackgasse und umgeben von einem gepflegten, eingewachsenen Grundstück, erwartet Sie eine Immobilie mit Potenzial und viel Raum für Ihre eigenen Ideen. Hervorzuheben ist die Kombination von außergewöhnlicher Ruhe und unmittelbarer Großstadtnähe.
- Charmante Doppelhaushälfte mit idealer Raumaufteilung für Familien
- Verkehrsberuhigte Lage am Ende einer Sackgasse
- Baujahr 1984, massive Bauweise
- Ideell geteiltes Grundstück
- Weiß geschlämmte Fassade mit dunkelgrünen Fenstern & grüner Eingangstür
- Walmdach mit anthrazitfarbener Frankfurter Pfanne (2025 gereinigt & neu beschichtet)
- Großteils modernisierte, dreifachverglaste Kunststofffenster
- ca. 111 m² Wohnfläche
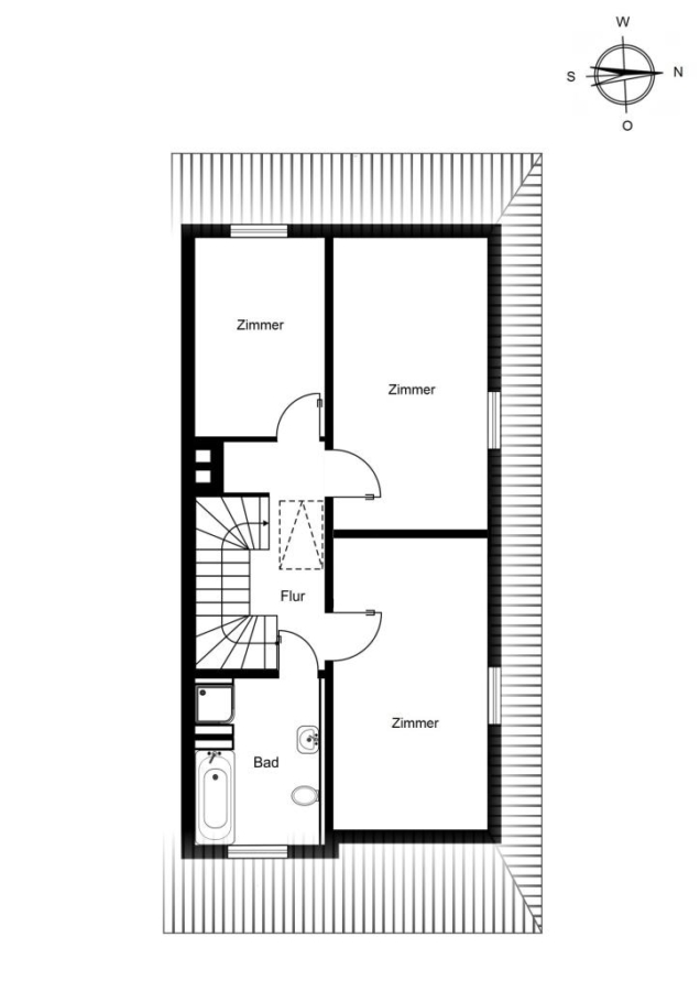
- 4 gut geschnittene Zimmer auf Erd- und Dachgeschoss
- Spitzboden mit Ausbaureserve (Stehhöhe)
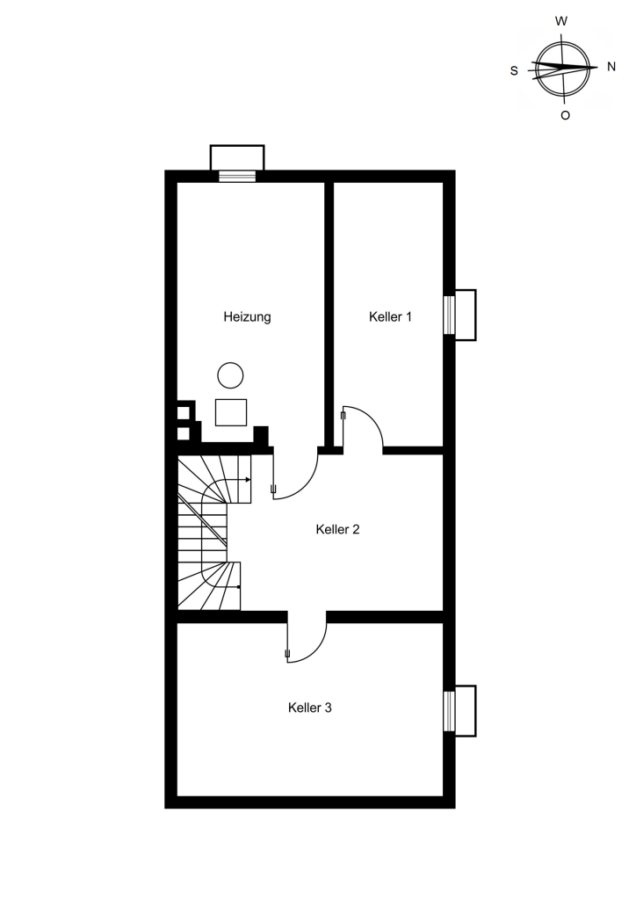
- Vollkeller mit viel Stauraum
- Gaszentralheizung (Baujahr 2004)
- Fußbodenheizung im gesamten Erdgeschoss
- Moderne Smart-Home-Steuerung der Heizventile
Ausstattung
Erdgeschoss:
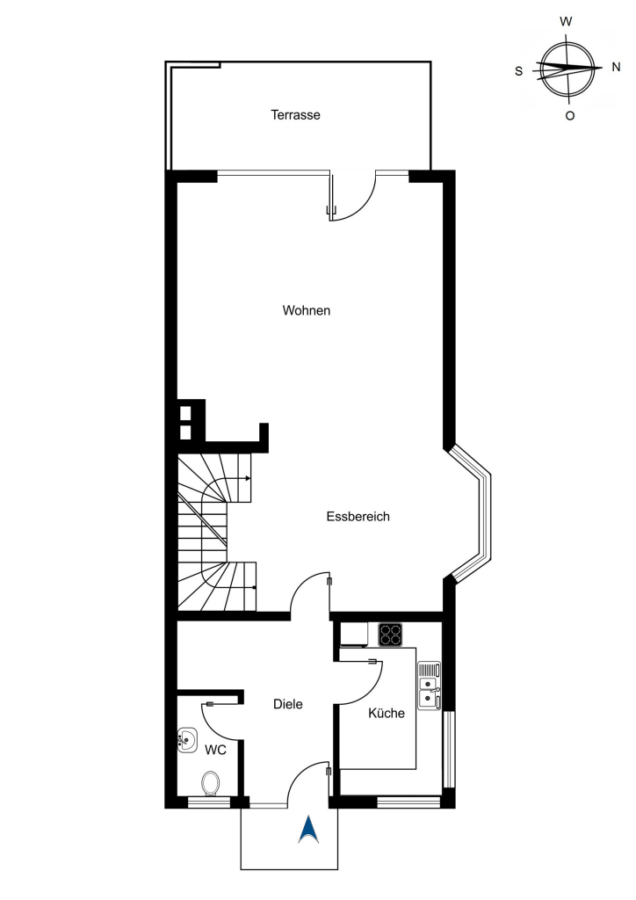
- Großzügiger Eingangsbereich mit Garderobe
- Separates Gäste-WC
- Küche im Retrostil mit Eckfenster und schönem Gartenblick
- Heller Wohn- und Essbereich mit Erker
- Bodentiefe Fensterfronten mit Zugang zur Terrasse
- Terrasse in sonniger Ausrichtung
- Möglichkeit zur Nachrüstung eines Kaminofens
Dachgeschoss:
- Drei gut geschnittene Zimmer
- Flexible Nutzung: Schlaf-, Kinder-, Gästezimmer, Büro oder Ankleide
- LAN-Anschluss (Glasfaser vorhanden)
- Teilweise bereits isolierte Wände und Decken (Restarbeiten erforderlich)
- Großzügiges Badezimmer mit Fußbodenerwärmung
- Modernisierungspotenzial zur individuellen Gestaltung
Weitere Flächen:
- Spitzboden mit Stehhöhe (Ausbaureserve oder Stauraum)
- Vollkeller mit drei Abstellräumen
- Platz für Waschmaschine und Trockner
- Gaszentralheizung (2004)
Außen & Technik:
- Carportstellplatz direkt am Haus
- Schuppen für Gartengeräte und mehrere Fahrräder
- Kabel-TV-Anschluss
- Glasfaseranschluss mit bis zu 1.000 MBit/s
Zustand:
- Solider Erhaltungszustand
- Innenausstattung renovierungs-/ modernisierungsbedürftig
- Viel Gestaltungsspielraum für individuelle Wohnideen
Sonstiges
- ca. 472 m² Grundstück (im Sondernutzungsrecht)
- Liebevoll angelegter Garten mit immergrünen Beeten
- Großzügige Rasenfläche
- Alter Baumbestand im hinteren Grundstücksbereich
- Südwest-Ausrichtung
- Blickdicht eingewachsen – hohe Privatsphäre
- Großzügige Terrasse für entspannte Stunden im Freien
- Überdachte Abstellfläche direkt an der Terrasse (ideal für Grill o. Ä.)
Besonders geeignet für:
- Familien oder Paare
- Ruhiges, grünes Wohnumfeld
- Schnelle Anbindung nach Hamburg
Lage
Die Gemeinde Wentorf liegt etwa 20 km östlich der Hamburger Innenstadt und zählt zu den beliebtesten Lagen im Hamburger Speckgürtel.
Die direkte Nähe zum idyllischen Sachsenwald und zur Wentorfer Lohe bietet ein Maximum an Lebensqualität. Zahlreiche Golfclubs, der TTK Tontaubenklub Sachsenwald e. V. sowie weitere Sport- und Fitnessclubs lassen auch für die Freizeitgestaltung keine Wünsche offen. Vor Ort sind zahlreiche Einkaufsmöglichkeiten (unter anderem Aldi, Rewe, Budnikowsky, Rossmann, Lidl, ein Bäcker und zwei Edeka-Filialen) mit großzügigen, kostenfreien Parkplätzen gegeben, ebenso eine hervorragende ärztliche Versorgung. Zudem befinden sich Kindertagesstätten sowie alle Schulformen in der unmittelbaren Umgebung. In Reinbek und Bergedorf wird ein breites Spektrum an kulturellen Veranstaltungen geboten.
Die S-Bahn-Station Reinbek ist fußläufig von der Immobilie aus erreichbar, ebenso mit mehreren, eng getakteten Buslinien. Die Hamburger Innenstadt lässt sich per PKW oder von der S-Bahn-Station Reinbek in ca. 30 Minuten problemlos erreichen.
Die dargestellte Position der Immobilie ist nur eine ungefähre Angabe.

















