Raumwunder in Reinbek in direkter Waldrandlage: „Gut geschnittenes Reihenmittelhaus mit Platz für die Familie“
21465 Reinbek, Reihenmittelhaus zum Kauf
Kontaktdaten
-
NameFrau Rebecca Hans
-
FirmaPIPPING Immobilien GmbH & Co. KG - Filiale Reinbek
-
AnschriftBahnhofstraße 12
21465 Reinbek -
E-Mail
-
Telefon
-
Telefon
-
Mobil
-
Fax+49 40 40 11 33 6 - 29
Objektdaten
-
Objekt IDRH-2571012655
-
ObjekttypenHaus, Reihenmittelhaus
-
Adresse21465 Reinbek
-
Wohnfläche ca.101 m²
-
Grundstück ca.170 m²
-
Nutzfläche ca.76 m²
-
Zimmer4
-
Wesentlicher EnergieträgerGas
-
Baujahr1978
-
Zustandgepflegt
-
ProvisionspflichtigJa
-
Käuferprovision3,125 % inkl. USt.
-
Kaufpreis425.000 EUR
Energieausweis
-
EnergieausweistypBedarfsausweis
-
Gültig bis02.11.2035
-
GebäudeartWohngebäude
-
Baujahr lt. Energieausweis2006
-
PrimärenergieträgerGas
-
Endenergiebedarf152,00 kWh/(m²·a)
-
EnergieeffizienzklasseE
Objektbeschreibung
Beschreibung
Bei dem angebotenen Objekt handelt es sich um ein zweigeschossiges Mittelreihenhaus, welches im Jahre 1978/79 in Holzrahmenbauweise in ruhiger und familienfreundlicher Lage des Sachsenwaldes errichtet wurde.
Das Außenkleid präsentiert sich mit einer weißen Kunstharzputzfassade. Kontrastreich setzen sich die dunkel gestrichenen, isolierverglasten Holzfenster aus nordischen Fichtenholz zur Fassade ab. Das Erdgeschoss ist mit Außenjalousien (größtenteils elektrisch) ausgestattet. Insgesamt verteilen sich derzeit drei gut geschnittene Zimmer auf einer Wohn- und Nutzfläche von ca. 101 m² über Erd- und Obergeschoss (im Obergeschoss wurden seinerzeit zwei Zimmer zusammengelegt – ein Rückbau wäre mit wenig Aufwand umsetzbar). Ein weiterer, sehr großzügig geschnittener Raum erwartet Sie im wohnlich ausgebaute Spitzboden. Dieser weist zusätzlich ca. 24 m² Nutzfläche aus und bietet viel Platz für die Familie oder kreative Hobbys. Das Objekt ist voll unterkellert. Die Beheizung sowie die Warmwasserversorgung übernimmt eine Gaszentralheizung der Fa. Buderus aus dem Jahre 2006. Ein Holzschuppen im Vordergarten bietet Platz für die Fahrräder, Gartengeräte & Co. Ein Garagenstellplatz auf dem Garagenhof wird mit veräußert.
Was Sie noch wissen sollten:
Die Immobilie befindet sich in einem sehr gepflegten Erhaltungszustand. Die Ausstattung entspricht allerdings in Teilbereichen nicht mehr dem heutigen Zeitgeschmack. Das Objekt eröffnet daher viel Gestaltungsspielraum für die Verwirklichung eigener Wohnideen. Die Fassadenwände sind laut Baubeschreibung aus Asbest-Zement-Tafeln.
Ausstattung
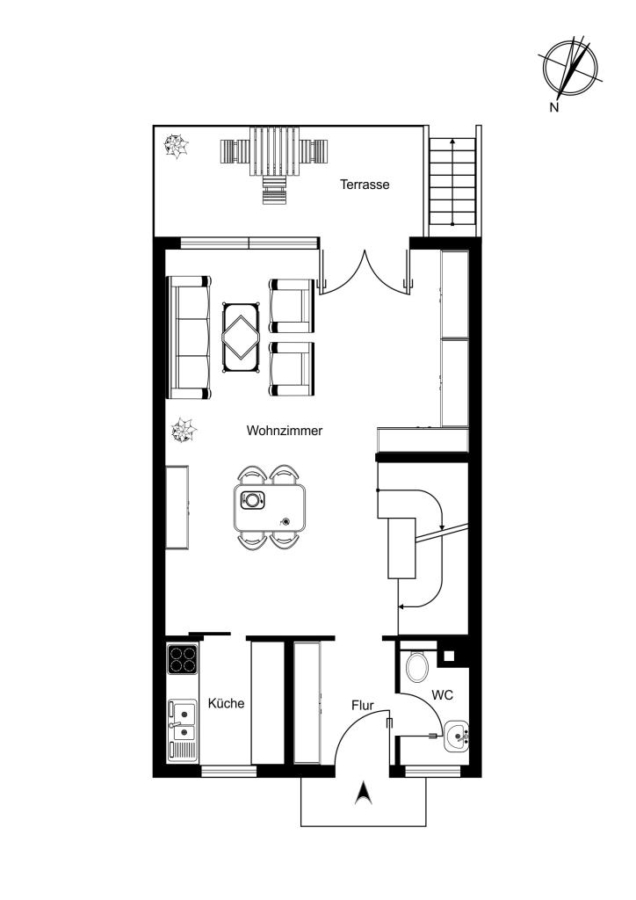
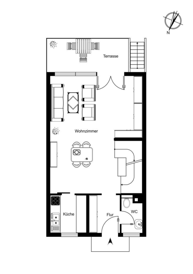
Ein überdachter Eingangspodest führt Sie in das Haus. Ein geräumiger Windfang nimmt Sie hier in Empfang und verfügt über eine praktische Garderobennische mit viel Platz. Rechter Hand schließt sich ein helles Gäste-WC mit Fenster an.
Linker Hand ist die Küche gelegen, welche mit einer Einbauküche im Retrostil ausgestattet ist.
Geradezu führt der Weg in den offen konzipierten, über ca. 35 m² großen Wohn- und Essbereich, welcher sich dank eines raumbreiten Panoramafensters und der sonnigen Süd-Ost-Ausrichtung in angenehmen Lichtverhältnissen präsentiert. Die anliegende Terrasse lädt in den Sommermonaten zum Verweilen ein. Der Essbereich bildet das kommunikative Zentrum des Mittelreihenhauses.
Eine offene Holztreppe geleitet vom Wohn- und Essbereich auf das erste Obergeschoss. Die zweigeschossige Bauweise erlaubt auch auf dieser Etage großzügiges Wohnen ohne Schrägen.
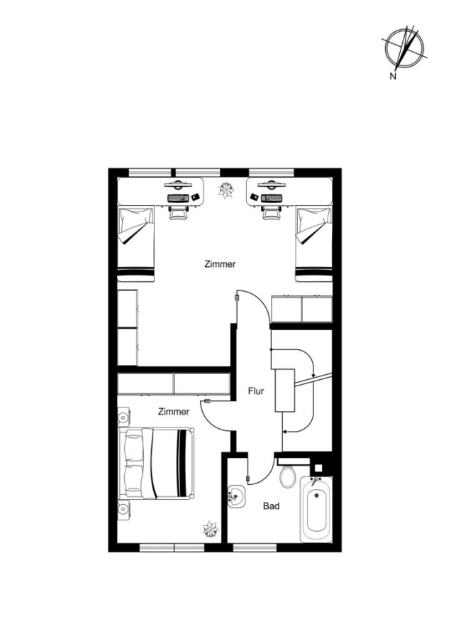
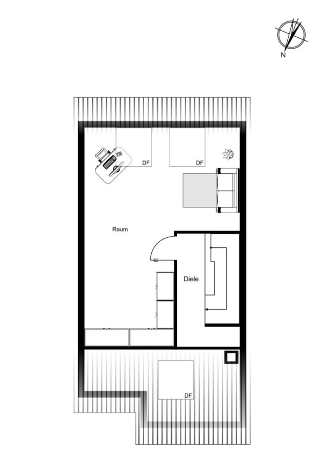
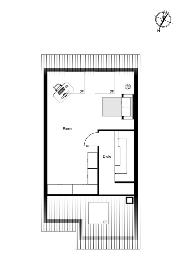
Direkt von der Diele gelangt der Besucher in zwei sehr großzügig geschnittene Schlafzimmer, eines davon ist mit einem praktischen Einbauschrank ausgestattet. Das geräumige Vollbad wurde schätzungsweise in den 90-iger Jahren saniert und ist mit hellen Wand- und Bodenfliesen, einer Dusche sowie einer Wanne ausgestattet.
Als ganz besonderes Highlight jedoch fungiert das ausgebaute Studiozimmer im Dachgeschoss, dessen Charme durch Schrägen und die offene Balkenlage unterstrichen wird und sich ideal als Jugend- oder Gästebereich anbieten würde. Zwei großzügige Dachflächenfenster sorgen für eine angenehme Belichtung.
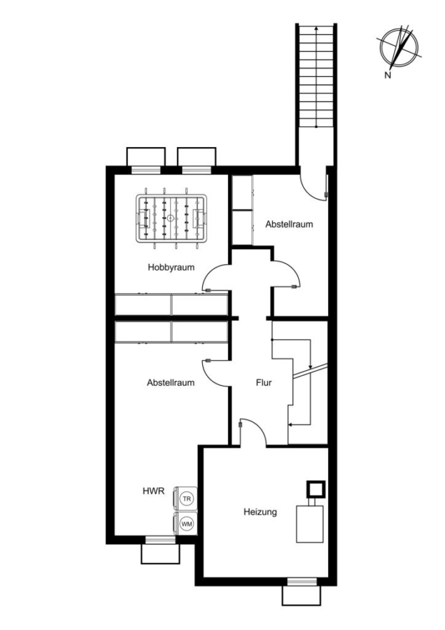
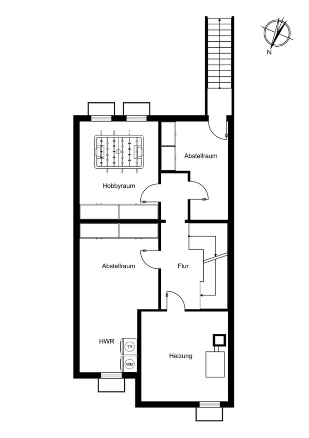
Zurück im Erdgeschoss führt der Weg in den Vollkeller, welcher zudem über einen separaten Außenzugang zu erreichen ist.
Neben dem Heizungsraum sind auf der untersten Geschossebene des Hauses zwei Vorratsräume sowie ein Hobbyraum untergebracht.
Sonstiges
Das ca. 170 m² große Grundstück mit sonnenverwöhnter Süd-Ost-Ausrichtung befindet sich in einem hübschen und zugleich pflegeleicht angelegten Zustand.
Der blickdicht eingewachsene Garten bietet ausreichen Privatsphäre. Die großzügige Terrasse garantiert angenehme Stunden unter freiem Himmel. Besonders ist die direkte Zuwegung zum angrenzenden Waldgebiet.
Das angebotene Mittelreihenhaus eignet sich besonders für einen Personenkreis, welcher ruhiges Wohnen inmitten einer gewachsenen Nachbarschaft und familienfreundlicher Umgebung zu schätzen weiß.
Lage
Reinbek - "die Stadt im Grünen", mit dem Ortsteil Krabbenkamp liegt im Speckgürtel von Hamburg in Schleswig-Holstein und zählt derzeit ca. 28.000 Einwohner. Das angebotene Einfamilienhaus liegt in besonders guter Lage von Reinbek-Krabbenkamp. Der Sachsenwald, das größte Waldgebiet Schleswig-Holsteins, und das Naturschutzgebiet Billetal beginnen quasi vor der Haustür.
Das Zentrum der Kleinstadt mit sämtlichen Einkaufsmöglichkeiten des täglichen Bedarfs liegt nur wenige Fahrrad- bzw. PKW – Minuten entfernt.
Weitere infrastrukturelle Gegebenheiten wie Bäcker, Supermärkte, Ärzte, und Apotheken sowie die S-Bahnhöfe Wohltorf und Aumühle sind fußläufig zu erreichen. Kindergärten, Grundschulen und weiterführende Schulen sind ebenfalls in der Nähe.
Das bekannte Schloss Reinbek, das Theaterforum, die Volkshochschule und andere Einrichtungen wie Stadtbibliothek und Museum Rade vermitteln kulturelle Erlebnisse. Hallenbad und Natursee, Reit-, Golf und sonstige Vereine bieten in unmittelbarer Umgebung einen bunten Mix an Möglichkeiten zur Freizeitgestaltung. Mit dem St. Adolf-Stift verfügt Reinbek auch über ein hochleistungsfähiges Krankenhaus.
Die Hamburger Innenstadt erreicht man mit dem PKW über die B 5 oder mit der S-Bahn in ca. 30 Fahrminuten. Die Auffahrten zur BAB 24 Hamburg-Berlin und zur BAB 1 Hamburg-Lübeck liegen nur 10 bzw. 20 Minuten entfernt.
Die dargestellte Position der Immobilie ist nur eine ungefähre Angabe.

















