Ideal für die kleine Familie: „Gemütliches Reihenhaus nahe der Boberger Dünen“
21033 Hamburg, Reihenhaus zum Kauf
Referenz
Dieses Objekt wurde bereits erfolgreich vermittelt.
Objektbeschreibung
Beschreibung
Bei der hier angebotenen Immobilie handelt es sich um ein Reihenmittelhaus, welches im Jahre 1962 in massiver Bauweise mit Vollkeller errichtet wurde.
Die Immobilie präsentiert sich in einer amaranthroten Putzfassade mit Akzenten eines klassischen Rotklinkers sowie dazu hervorragend korrespondierenden, weißen Eichenholzfenstern.
Die Beheizung sowie die Warmwasserversorgung erfolgt über eine Gaszentralheizung.
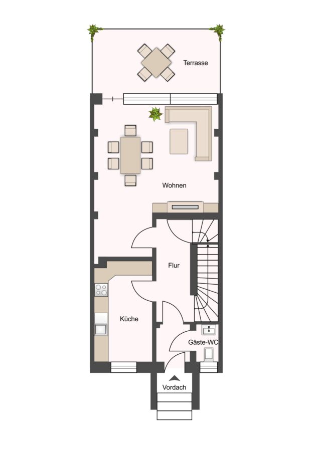
Insgesamt verfügt das Objekt über eine Wohnfläche von ca. 78 m², welche sich auf zwei ganze sowie zwei halbe Zimmer, eine Küche, ein Duschbad und ein Gäste-WC verteilen.
Der Hauseingang ist mit einer praktischen Glasabdeckung überdacht. Zusätzlich bietet eine gepflasterte Freifläche vor dem Haus die Möglichkeit zum Abstellen von Fahrrädern und Co.
Ausstattung
Beim Betreten der Immobilie werden Sie von einem kleinen Windfang in Empfang genommen, von welchem Sie Zugang zu dem hell gefliesten Gäste-WC mitsamt eines praktischen Handtuchheizkörpers haben.
Geradezu gelangen Sie direkt in den Flur. Linker Hand befindet sich die großzügige Küche, welche mit einer voll ausgestatteten Einbauküche aus Massivholz inklusive Backofen, Induktionsherd, Dunstabzugshaube, Geschirrspüler und Kühlschrank versehen ist.
Das Wohnzimmer, welches mit einem gut erhaltenen Echtholzboden augestattet ist (Buche), punktet mit einer großen Fensterfront sowie ausreichend Platz für eine gemütliche Sofalandschaft.
Über eine stilvolle Holztreppe gelangen Sie in das Obergeschoss, welches ein ganzes sowie zwei halbe Zimmer und ein Duschbad für Sie bereithält. Ein gut platziertes Oberlicht sorgt auch im Innenleben des Hauses für herrliche Lichtverhältnisse.
Das großzügige Schlafzimmer punktet mit bodentiefen Fensterelementen und genügend Platz zur Unterbringung eines Doppelbettes sowie eines Kleiderschranks. Zudem bietet ein angrenzender Abstellraum zusätzliche Staufläche und könnte optional als kleiner begehbarer Kleiderschrank genutzt werden.
Anliegend befindet sich das hell geflieste Duschbad, welches mit weißen Sanitärobjekten und Fliesen ausgestattet ist. Ein Handtuchheizkörper sowie ein großflächiger Spiegel bieten zusätzlichen Komfort.
Die beiden weiteren halben Zimmer auf dieser Ebene ließen sich optimal als Gäste-, Kinder- oder Arbeitszimmer nutzen. Von einer der Räumlichkeiten haben Sie Zugang auf den gemütlichen Balkon in Südwestausrichtung.
Der Keller umfasst eine Nutzfläche von insgesamt ca. 38 m², welche sich auf drei Räume verteilen und somit genügend Staufläche bieten. In einer dieser Räumlichkeiten ist die Heizung untergebracht.
Lage
Lohbrügge ist ein Stadtteil im Südosten von Hamburg, der zum Bezirk Bergedorf gehört. Sämtliche Infrastruktureinrichtungen wie Kindergärten, alle Schularten, Einkaufsmöglichkeiten für den täglichen Bedarf sowie eine Einkaufspassage mit zahlreichen Fachgeschäften, diverse Ärzte, vielfältige Kultur- und Sportangebote sind in unmittelbarer Nähe bzw. in Bergedorf vorhanden.
Das Naherholungsgebiet Grünes Zentrum mit Kinderspielplätzen, einem Bouleplatz, Grillplätzen und einer Skaterbahn bietet viele Freizeitmöglichkeiten.
Im nahegelegenen Sachsenwald sowie in den direkt an das Grundstück grenzenden Boberger Dünen lassen sich ausgedehnte Spaziergänge und Fahrradtouren unternehmen.
In der Hamburger Innenstadt ist man über die B5 oder mit der S-Bahn ab Bergedorf in ca. 25 Minuten. Ein dichtes Busnetz ermöglicht eine schnelle und bequeme Verbindung auch in die angrenzenden Landkreise. Verschiedene Autobahnen (BAB Lübeck-Bremen, Hamburg-Berlin) sind ebenfalls schnell zu erreichen.
Die dargestellte Position der Immobilie ist nur eine ungefähre Angabe.

















