Klassische Schönheit sucht seinesgleichen: „Eine Grande Dame in Wentorf“
21465 Wentorf, Zweifamilienhaus zum Kauf
Kontaktdaten
-
NameFrau Rebecca Hans
-
FirmaPIPPING Immobilien GmbH & Co. KG - Filiale Reinbek
-
AnschriftBahnhofstraße 12
21465 Reinbek -
E-Mail
-
Telefon
-
Telefon
-
Mobil
-
Fax+49 40 40 11 33 6 - 29
Objektdaten
-
Objekt IDRH-2521112786
-
ObjekttypenHaus, Zweifamilienhaus
-
Adresse21465 Wentorf
-
Wohnfläche ca.334 m²
-
Grundstück ca.2.090 m²
-
Nutzfläche ca.200 m²
-
Zimmer8
-
Wesentlicher EnergieträgerÖl
-
Baujahr1923
-
Zustandrenovierungsbedürftig
-
Garage2 Stellplätze
-
ProvisionspflichtigJa
-
Käuferprovision3,125 % inkl. USt.
-
Kaufpreis1.500.000 EUR
Ausstattung / Merkmale
- ✓ Garage
Energieausweis
-
EnergieausweistypBedarfsausweis
-
Gültig bis08.12.2035
-
GebäudeartWohngebäude
-
Baujahr lt. Energieausweis2002
-
PrimärenergieträgerÖl
-
Endenergiebedarf253,20 kWh/(m²·a)
-
EnergieeffizienzklasseH
Objektbeschreibung
Beeindruckend und herrschaftlich ist das Erscheinungsbild dieser traditionellen Villa. Im Jahre 1923 wurde das Objekt als zweigeschossiger, repräsentativer Backsteinbau mit seitlichem quadratischen Eckturm, Krüppelwalmdach und einer verzierenden Giebelverkleidung errichtet.
Das Objekt wurde ursprünglich als Landhaus/ Einfamilienhaus konzipiert und gehört zu den wenigen großen Bauten, die in den zwanziger Jahren im Billewinkel entstanden sind. Es erwartet Sie eine klassische Altbauimmobilie mit viel Charme und repräsentativen Räumlichkeiten. Aufgrund der Größe und Beschaffenheit sind unterschiedlich Nutzungsmöglichkeiten umsetz- und denkbar: Ob herrschaftliches Wohnen, Mehrgenerationenhaus oder Wohnen plus Arbeiten – das Objekt ist vielseitig nutzbar.
Anfang der achtziger Jahre wurde das Haus um einen Teilausbau im Dachgeschoss erweitert und eine Aufteilung als Zwei- bis Dreifamilienhaus wurde vorgenommen. Eine grundsätzliche Grundrissveränderung hat nicht stattgefunden. Lediglich Zwischentüren wurden verbaut und die Ebenen um eine Küche und Bäder ergänzt. Ein Rückbau zu einem Einfamilienhaus ist mit wenig Aufwand möglich. Die Immobilie befindet sich für eine "hundertjährige Dame" in einem sehr guten und gepflegten Erhaltungszustand. Unter anderem wurde in den achtziger Jahren die Rohrleitungen und Sanitärinstallationen sowie die Fenster (isolierverglaste Kunststofffenster) erneuert.
Erfreuen Sie sich an den alten Stilelementen der Epoche: Großzügige Grundrissgestaltung, baujahresentsprechende Deckenhöhen, gut erhaltenes Fischgrätparkett & Pitchpine Dielenböden sowie historische Türen, Zargen und Fußleisten lassen jedes "Altbauherz" höher schlagen.
Auf einer großzügigen Wohn- und Nutzfläche von ca. 334 m² verteilen sich zurzeit acht gut geschnittene Zimmer, eine Veranda, zwei Küchen und zwei Bäder über Erd-, Ober-und Dachgeschoss.
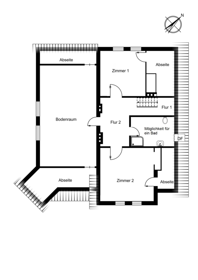
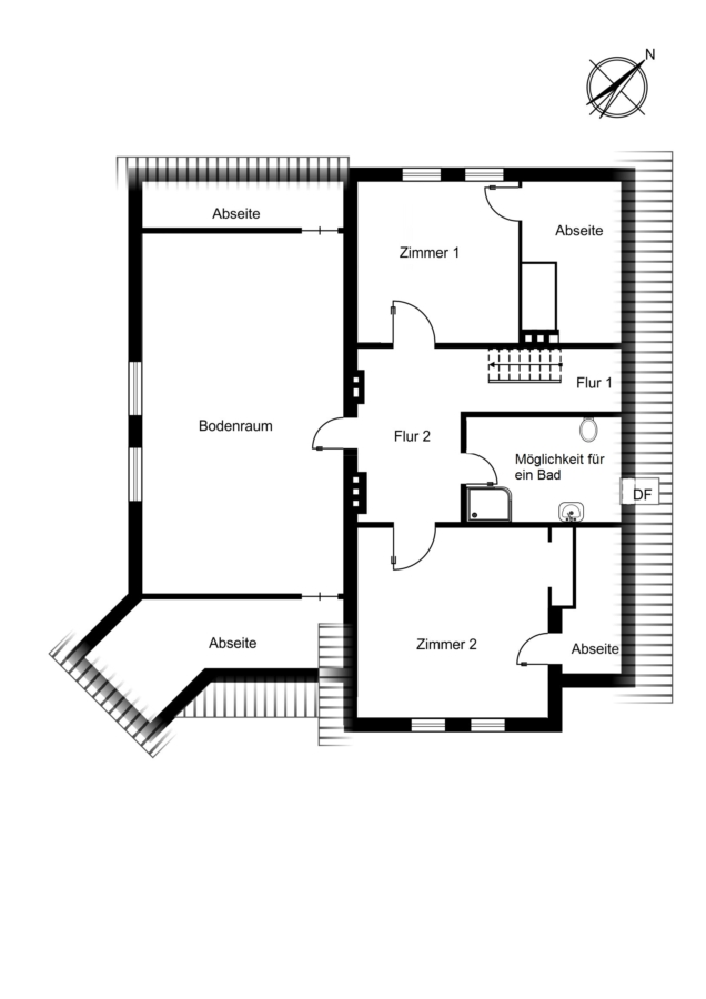
Im Dachgeschoss steht Ihnen eine weitere Nutzfläche von ca. 26 m² zur Verfügung, diese wird zurzeit als Bodenraum und Bad ausgewiesen. Eine Umnutzung in Wohnraum wäre bei Bedarf problemlos umsetzbar.
Der Vollkeller verfügt über einen Außenzugang und weist ausreichend Stauraum aus.
Die Beheizung und Warmwasserversorgung erfolgen durch eine Ölzentralheizung aus dem Jahre 2002.
Lassen Sie dieses Schmuckstück im neuen Glanz erstrahlen – zusätzliche Kosten für Modernisierungs- und Sanierungsarbeiten sind mit einzukalkulieren.
Gern stellen wir Ihnen diese historische Dame persönlich vor Ort vor – wir freuen uns über Ihre Kontaktaufnahme.
Lage
Die Gemeinde Wentorf liegt etwa 20 km östlich der Hamburger Innenstadt und zählt zu den beliebtesten Lagen im Hamburger Speckgürtel. Überwiegend gepflegte Einfamilienhäuser und luxuriöse Villen prägen den repräsentativen Charakter dieser einmalig schönen Gegend.
Die direkte Nähe zum idyllischen Sachsenwald und zur Wentorfer Lohe bietet ein Maximum an Lebensqualität. Zahlreiche Golfclubs, der TTK Tontaubenklub Sachsenwald e. V. sowie weitere Sport- und Fitnessclubs lassen auch für die Freizeitgestaltung keine Wünsche offen. Kulturelle Veranstaltungen werden in Reinbek und Bergedorf geboten. Zudem befinden sich Kindertagesstätten sowie alle Schulformen in der unmittelbaren Umgebung. Einkaufsmöglichkeiten für Besorgungen des täglichen Bedarfs und darüber hinaus sowie eine hervorragende ärztliche Versorgung sind ebenfalls vor Ort gegeben.
Die Hamburger Innenstadt lässt sich per PKW oder von der S-Bahn-Station Reinbek in ca. 30 Minuten problemlos erreichen.
Die dargestellte Position der Immobilie ist nur eine ungefähre Angabe.

























