Ihr neuer Standort in Reinbek: „Produktiv arbeiten, clever wachsen – Bürokomplex und Werkhalle“
21465 Reinbek, Renditeobjekt zum Kauf
Kontaktdaten
-
NameHerr Philipp Schönemann
-
FirmaPIPPING Immobilien GmbH & Co. KG - Filiale Reinbek
-
AnschriftBahnhofstraße 12
21465 Reinbek -
E-Mail
-
Telefon
-
Telefon
-
Mobil
-
Fax+49 40 40 11 33 6 - 79
Objektdaten
-
Objekt IDPS-251812534
-
ObjekttypRenditeobjekt
-
Adresse21465 Reinbek
-
Wohnfläche ca.111 m²
-
Grundstück ca.1.613 m²
-
Nutzfläche ca.209 m²
-
Bürofläche ca.102 m²
-
Gesamtfläche ca.913 m²
-
Lagerfläche ca.594 m²
-
Büroteilfläche ca.102 m²
-
Vermietbare Fläche ca.913 m²
-
Wesentlicher EnergieträgerGas
-
Baujahr1965
-
ProvisionspflichtigJa
-
Käuferprovision6,25 % inkl. USt.
-
Kaufpreis1.400.000 EUR
Energieausweis
-
EnergieausweistypVerbrauchsausweis
-
GebäudeartNichtwohngebäude
-
Baujahr lt. Energieausweis2016
-
PrimärenergieträgerGas
-
Endenergieverbrauch Strom58,00 kWh/(m²·a)
-
Endenergieverbrauch Wärme172,00 kWh/(m²·a)
Objektbeschreibung
Dieser großzügige Gewerbekomplex vereint Bürofläche, eine weitläufige Werkhalle und eine komfortable Wohnung – ideal für Unternehmer, Investoren oder kreative Köpfe mit großem Platzbedarf.
Der gepflegte Gebäudekomplex wurde im Jahre 1965 errichtet. Die Halle wurde erweitert.
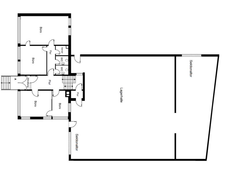
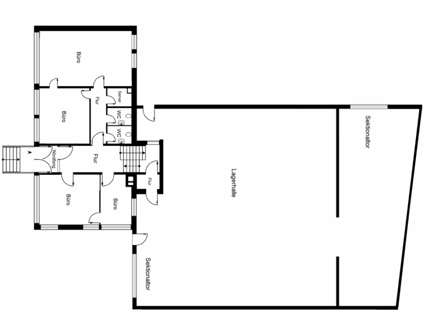
Im Erdgeschoss/ Hochparterre erwartet Sie ein ansprechender Büroteil mit ca. 102 m² Nutzfläche, aufgeteilt in fünf gut geschnittene Räume. Helle Fensterfronten schaffen eine angenehme Arbeitsatmosphäre, während eine Garderobe sowie zwei WCs für Komfort sorgen.
Das Bürogebäude wurde in den letzten Jahren mit einem Wärmeverbundsystem versehen.
Das Herzstück des Objekts ist die Werkhalle mit ca. 594 m² Nutzfläche. Zwei große Rolltore ermöglichen bequemes Befahren – ob für Lager, Produktion oder Handwerk, hier haben Sie den Raum, um Ihre Ideen Wirklichkeit werden zu lassen.
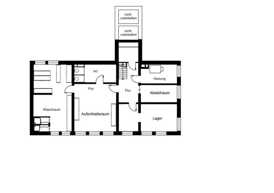
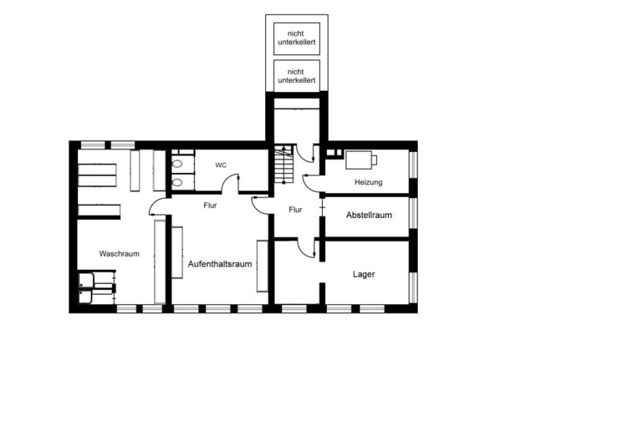
Das Kellergeschoss erweitert Ihre Möglichkeiten: Zwei Archive für geordnete Lagerung, ein Aufenthaltsraum mit Küchenzeile für Ihre Pausen, Umkleiden, ein Waschraum, ein Duschbad mit drei Duschen sowie Technik- und Hausmeisterräume sorgen für perfekte Organisation und Funktionalität.
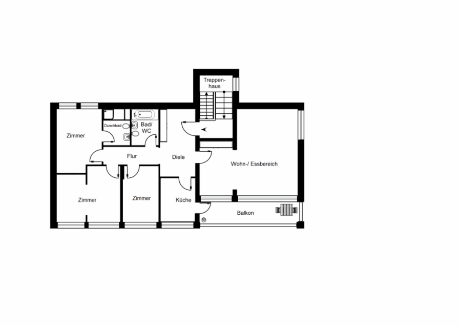
Im Obergeschoss erwartet Sie eine großzügige Wohnung mit ca. 111 m² Wohnfläche. Die verfügt über zwei helle, große Zimmer, zwei weitere halbe Zimmer, eine voll ausgestattete Küche, ein gepflegtes Badezimmer, eine geräumige Diele und einen Balkon.
Lage
Reinbek - die "Stadt im Grünen", liegt im Speckgürtel von Hamburg und bietet derzeit ca. 28.000 Einwohnern eine attraktive Infrastruktur mit Ärzten, Apotheken, Restaurants, Supermärkten sowie Dienstleistungsbetrieben aus allen Branchen. Kindergärten, Grundschulen und weiterführende Schulen sind ebenso vorhanden wie ein vielfältiges Angebot an Kindertageseinrichtungen.
Das Reinbeker Schloss, das Theaterforum, die Volkshochschule, ein Hallenbad und ein Natursee sowie verschiedene Vereine, Verbände und mehrere Sportstätten in der unmittelbaren Umgebung bieten attraktive Möglichkeiten zur Freizeitgestaltung. Mit dem St. Adolf-Stift verfügt Reinbek auch über ein modernes Krankenhaus. Der nahgelegene Sachsenwald, das größte Waldgebiet Schleswig-Holsteins, lädt zu Ausflügen ein.
Die Hamburger Innenstadt steuert man mit dem PKW über die B5 oder mit der S-Bahn in ca. 30 Fahrminuten an. Die Auffahrten zur A24 Hamburg-Berlin und zur A1 Hamburg-Lübeck sind ebenfalls schnell erreichbar.
Die dargestellte Position der Immobilie ist nur eine ungefähre Angabe.




