Charmante Doppelhaushälfte: „Geräumiges Zuhause für Ihre Familie in Wohltorf“
21521 Wohltorf, Doppelhaushälfte zum Kauf
Kontaktdaten

-
NameFrau Rebecca Hans
-
FirmaPIPPING Immobilien GmbH & Co. KG - Filiale Reinbek
-
AnschriftBahnhofstraße 12
21465 Reinbek -
E-Mail
-
Telefon
-
Telefon
-
Mobil
-
Fax+49 40 40 11 33 6 - 29
Objektdaten
-
Objekt IDRH-253712473
-
ObjekttypenDoppelhaushälfte, Haus
-
Adresse21521 Wohltorf
-
Wohnfläche ca.131 m²
-
Grundstück ca.577 m²
-
Zimmer4,5
-
Wesentlicher EnergieträgerGas
-
Baujahr2004
-
Letzte Modernisierung2018
-
Zustandmodernisiert
-
ProvisionspflichtigJa
-
Käuferprovision3,125 % inkl. USt.
-
Kaufpreis545.000 EUR
Ausstattung / Merkmale
- ✓ Außenstellplatz
Energieausweis
-
EnergieausweistypVerbrauchsausweis
-
Gültig bis24.07.2035
-
GebäudeartWohngebäude
-
Baujahr lt. Energieausweis2004
-
PrimärenergieträgerGas
-
Endenergieverbrauch94,20 kWh/(m²·a)
-
EnergieeffizienzklasseC
Objektbeschreibung
Beschreibung
Willkommen in Ihrem neuen Zuhause.
Diese ansprechende Doppelhaushälfte wurde im Jahr 2004 in einer verkehrsberuhigten Straße mit solider, massiver Bauweise errichtet. Die Fassade ist mit einem hellen, kunstharzgebundenen Dekorputz versehen. Teils werden die isolierverglasten Kunststoffsprossenfenster von Fensterläden geschmückt. Das Satteldach mit Gauben hebt sich markant durch rote Betondachsteine ab.
Die heutigen Eigentümer modernisierten die Immobilie im Jahr 2018 umfangreich mit viel Liebe zum Detail. Durch die Verwendung hochwertiger Materialien und eine ansprechende Gestaltung vereint die Immobilie heute Wohnen mit viel Flair und Platz für die Familie.
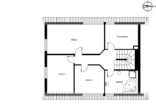
Auf einer Wohn- und Nutzfläche von ca. 131 m² verteilen sich 4,5 Zimmer über Erd- und Dachgeschoss, die zur individuellen Nutzung zur Verfügung stehen.
Der wohnlich ausgebaute Spitzboden bietet zusätzliche Nutzungsmöglichkeiten – ideal für kreative Hobbys.
Die Beheizung und Warmwasserversorgung der Immobilie erfolgen über eine Gaszentralheizung aus dem Jahre 2004. Eine Fußbodenheizung im gesamten Erdgeschossbereich sowie im Badezimmer sorgen für eine angenehme Wärme.
Ein Stellplatz direkt vor der Tür bietet Platz für den PKW.
Der Zustand dieses Hauses wird Sie begeistern und ist als äußerst gepflegt und technisch einwandfrei zu bezeichnen.
Ausstattung
Beim Eintreten in die Immobilie ist die angenehme und moderne Atmosphäre des Hauses bereits spürbar.
Ein großzügiger Eingangsbereich mit einer separaten Garderobe heißt Sie im Haus willkommen. In diesem Bereich wurde eine geschmackvolle, italienische Fliese als Fußbodenbelag gewählt.
Im Zentrum befindet sich der geräumige Wohn- und Essbereich mit integrierter Wohnküche. Die offen gestaltete Küche bietet Zugang zum Garten und zeichnet sich durch moderne, helle Einbauten, eine farblich abgesetzte Arbeitsplatte und hochwertige Markengeräte aus – sie ist der Treffpunkt der Familie und der perfekte Ort für kulinarische Erlebnisse sowie gesellige Abende.
Im Wohn- und Essbereich sorgen bodentiefe Fenster für eine lichtdurchflutete Atmosphäre und eröffnen einen schönen Blick in den Garten. An kalten Tagen spendet der Kaminofen angenehme Wärme und kreiert eine behagliche Atmosphäre. Eine wertige Eichendiele prägt das Raumkonzept.
Eine kleine Abseite wird als Vorratskammer genutzt. Die großzügige Terrasse bietet einen einladenden Ort zum Verweilen. In der Sonne spendet eine Markise Schatten. Der liebevoll gestaltete Garten ist blickdicht bepflanzt und bietet den Kindern Platz zum Spielen.
Der großzügige Hauswirtschaftsraum verfügt über Platz für eine Waschmaschine, einen Trockner neben der Gastherme und stellt ausreichend Stauraum zur Verfügung. Ein lichtdurchflutetes Gäste-WC mit Fensterbelüftung vervollständigt das Raumangebot auf dieser Ebene.
Über eine offene Holztreppe gelangen Sie in das Dachgeschoss mit dreieinhalb individuell geschnittenen Zimmern. Dachgauben und charmante Schrägen verleihen den Räumlichkeiten Gemütlichkeit.
Im Elternschlafzimmer wurde ein hochwertiger Einbauschrank verbaut. Das Badezimmer, das mit Dusche und Badewanne ausgestattet ist, weist ebenfalls ein modernes Design auf. Aufgrund seiner Größe bietet es der Familie viel Platz.
Auch der wohnlich ausgebaute Spitzboden ist ein weiteres Highlight – dieser wird derzeit als Spielzimmer genutzt.
Sonstiges
Über eine gemeinschaftliche Zufahrt gelangen Sie auf das Grundstück. Dieses bietet Ihnen reichlich Privatsphäre und ist vollständig umzäunt.
Den neuen Eigentümern stehen ca. 297 m² im Rahmen des Sondernutzungsrechts zur privaten Nutzung zur Verfügung.
Der Garten ist blickdicht bewachsen und liebevoll mit immer blühenden Beeten, einer gepflegten Rasenfläche und einer Natursteinmauer gestaltet. Die großzügige Terrasse eignet sich für schöne Grillabende und lädt dazu ein, sich in der Sonne zu entspannen.
Das angebotene Objekt ist ideal für Paare oder Familien, die eine grüne Umgebung suchen und gleichzeitig eine schnelle Verbindung nach Hamburg schätzen.
Lage
Ihr neuer Wohnsitz in der ca. 1.900 Einwohner umfassenden Gemeinde Wohltorf bietet die perfekte Symbiose von einer idealen Anbindung an Hamburg und naturnahem Wohnen. Kindergarten und Grundschule sind fußläufig zu erreichen, ebenso wie das Naturschutzgebiet und die S-Bahn. Weiterführende Schulen befinden sich in den Nachbarorten Wentorf und Reinbek.
Raus aus der anonymen Großstadt: Der Villenvorort ermöglicht ein attraktives Vorstadtleben mit kurzen Wegen. So ist zum Beispiel der Tennis- und Hockeyclub TTK mit Badesee nur einen Spaziergang entfernt. Mehrere Reitanlagen, einer der ältesten Golfclubs Deutschlands sowie weitere Golfanlagen in der näheren Umgebung und das Naherholungsgebiet Wentorfer Lohe laden zu vielfältigen Freizeitaktivitäten ein. Für die täglichen Einkäufe bietet sich das nahegelegene Aumühle an.
Die Immobilie befindet sich in unmittelbarer Nähe der Kiwi Manufaktur, hier findet der Gemüseverkauf direkt vom Feld jeden Freitag und Samstag von Mai bis Oktober statt.
Die Fahrzeit zum Hamburger Hauptbahnhof beträgt mit der S-Bahn ca. 30 Minuten. Eine gute Autobahnanbindung an die A24 und die A1 ist ebenfalls gegeben.
Die dargestellte Position der Immobilie ist nur eine ungefähre Angabe.