Voller Potenzial: „Reihenhaus in bevorzugter Lage von Reinbek wartet auf Ihre kreativen Ideen“
21465 Reinbek, Reihenmittelhaus zum Kauf
Kontaktdaten
-
NameHerr Ben Bode
-
FirmaPIPPING Immobilien GmbH & Co. KG - Filiale Reinbek
-
AnschriftBahnhofstraße 12
21465 Reinbek -
E-Mail
-
Telefon
-
Telefon
-
Mobil
-
Fax+49 40 40 11 33 6 - 29
Objektdaten
-
Objekt IDBEB-2531012644
-
ObjekttypenHaus, Reihenmittelhaus
-
Adresse21465 Reinbek
-
Wohnfläche ca.81 m²
-
Grundstück ca.177 m²
-
Zimmer4
-
Wesentlicher EnergieträgerGas
-
Baujahr1965
-
Garage1 Stellplatz
-
ProvisionspflichtigJa
-
Käuferprovision3,125 % inkl. USt.
-
Kaufpreis325.000 EUR
Ausstattung / Merkmale
- ✓ Garage
Energieausweis
-
EnergieausweistypBedarfsausweis
-
Gültig bis17.09.2035
-
GebäudeartWohngebäude
-
Baujahr lt. Energieausweis1993
-
PrimärenergieträgerGas
-
Endenergiebedarf249,72 kWh/(m²·a)
-
EnergieeffizienzklasseH
Objektbeschreibung
Beschreibung
Bei der angebotenen Immobilie handelt es sich um ein charmantes, aber dennoch renovierungsbedürftiges Reihenmittelhaus, welches im Jahre 1966 in konventioneller Bauweise in ruhiger und zentraler Lage von Reinbek errichtet wurde.
Die Fassade präsentiert sich in klassischem Rotklinker mit hierzu hervorragend korrespondierenden, weißen Fenstern. Die Fenster sind selbstverständlich 2-fach isolierverglast.
Die Beheizung der Immobilie erfolgt über eine Gaszentralheizung aus dem Jahre 1993.
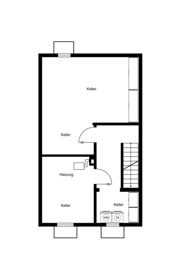
Die Immobilie bietet ca. 81 m² Wohnfläche und ist vollunterkellert.
Zudem steht den neuen Eigentümern ein Garagestellplatz auf dem gemeinschaftlichen Garagenhof zur Verfügung.
Ausstattung
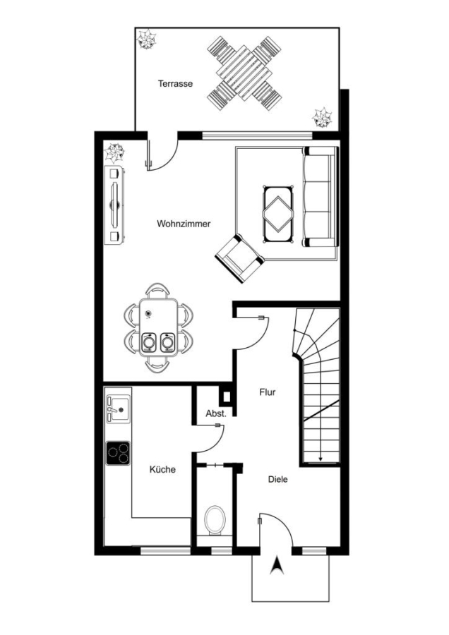
Beim Betreten der Immobilie gelangen Sie in die großzügige Diele mit ausreichend Platz für eine Garderobe.
Linker Hand befindet sich die Küche, welche mit einer zeitlosen Einbauküche (weiße Fronten, weiße Arbeitsplatte) sowie allen notwendigen Elektrogeräten ausgestattet ist. Ein großes Fenster sorgt hier für tolle Lichtverhältnisse und eine ideale Belüftung beim Kochen.
Der Diele folgend befindet sich das Herzstück des Hauses – der lichtdurchflutete Wohn- und Essbereich. Durch den pfiffigen Schnitt lässt sich hier eine individuelle Raumaufteilung herstellen. Platz für eine gemütliche Sofalandschaft sowie einen Esstisch finden Sie allemal. Besonders bestechen kann der Raum mit seiner großen Fensterfront. Von hier gelangen Sie auf die sonnige Terrasse in Südwest-Ausrichtung sowie den ruhigen Gartenbereich.
Ein Gäste-WC rundet das Raumangebot im Erdgeschoss ab.
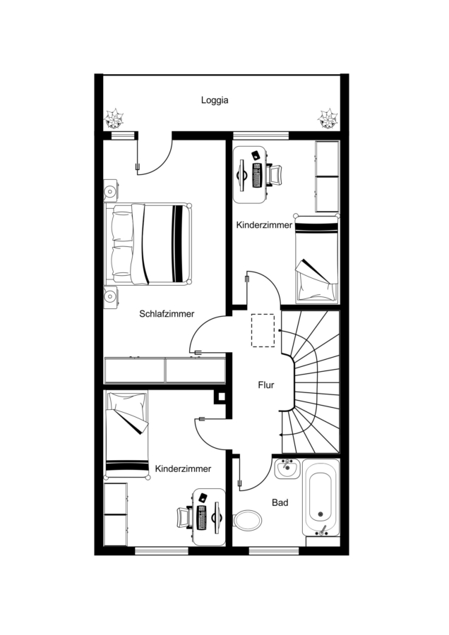
Über eine Treppe gelangen Sie in das Obergeschoss des Hauses. Hier treffen Sie drei weitere, gemütliche Zimmer sowie ein Vollbad an.
Das großzügig geschnittene Schlafzimmer bietet aufgrund des bodentiefen Fensters viel Tageslicht. Von hier aus gelangen Sie auf die Loggia, welche zum Entspannen einlädt.
Die zwei weiteren Zimmer können als Kinder-, Gäste- oder Arbeitszimmer frei genutzt werden.
Das Vollbad ist mit weißen Sanitärobjekten sowie hellen Wand- und Bodenfliesen ausgestattet und punktet mit einer idealen Belüftung aufgrund des großen Fensters.
Zurück im Erdgeschoss gelangen Sie über eine Steintreppe in den Vollkeller. Hier befindet sich neben dem Heizungsraum eine große Waschküche, wo sich die Anschlüsse für Waschmaschine und Trockner befinden. Je nach Aufteilung wäre hier auch ein praktischer Arbeitsbereich einzurichten.
Sonstiges
Das ca. 177 m² große Grundstück bietet Ihnen einen gemütlichen Ort zur Erholung.
Auf der nach Südwesten ausgerichteten, teilüberdachten Terrasse lassen sich schöne Stunden mit Familie und Freunden verbringen.
Mit ein wenig gärtnerischem Geschick ließe sich eine idyllische Atmosphäre mit einem hohen Maß an Privatsphäre schaffen.
Dieses charmante Reihenmittelhaus eignet sich hervorragend für junge Familien, welche das ruhige und dennoch zentrale Wohnen in Reinbek zu schätzen wissen.
Lage
Reinbek - die "Stadt im Grünen", liegt im Speckgürtel von Hamburg und bietet derzeit ca. 28.000 Einwohnern eine attraktive Infrastruktur mit Ärzten, Apotheken, Restaurants, Supermärkten sowie Dienstleistungsbetrieben aus allen Branchen.
Kindergärten, Grundschulen und weiterführende Schulen sind ebenso vorhanden wie ein vielfältiges Angebot an Kindertageseinrichtungen.
Das Reinbeker Schloss, das Theaterforum, die Volkshochschule, ein Hallenbad und ein Natursee sowie verschiedene Vereine, Verbände und mehrere Sportstätten in der unmittelbaren Umgebung bieten attraktive Möglichkeiten zur Freizeitgestaltung.
Mit dem St. Adolf-Stift verfügt Reinbek auch über ein modernes Krankenhaus. Der nahgelegene Sachsenwald, das größte Waldgebiet Schleswig-Holsteins, lädt zu Ausflügen ein.
Die Hamburger Innenstadt steuert man mit dem PKW über die B5 oder mit der S-Bahn in ca. 30 Fahrminuten an. Die Auffahrten zur A24 Hamburg-Berlin und zur A1 Hamburg-Lübeck sind ebenfalls schnell erreichbar.
Die dargestellte Position der Immobilie ist nur eine ungefähre Angabe.














