Erbbaurecht: „Renovierungsbedürftiges Einfamilienhaus in ruhiger Lage von Reinbek“
21465 Reinbek, Einfamilienhaus zum Kauf
Kontaktdaten
-
NameHerr Ben Bode
-
FirmaPIPPING Immobilien GmbH & Co. KG - Filiale Reinbek
-
AnschriftBahnhofstraße 12
21465 Reinbek -
E-Mail
-
Telefon
-
Telefon
-
Mobil
-
Fax+49 40 40 11 33 6 - 29
Objektdaten
-
Objekt IDBEB-2511212877
-
ObjekttypenEinfamilienhaus, Haus
-
Adresse21465 Reinbek
-
Wohnfläche ca.109 m²
-
Grundstück ca.677 m²
-
Zimmer4
-
Wesentlicher EnergieträgerÖl
-
Baujahr1962
-
ProvisionspflichtigJa
-
Käuferprovision3,125 % inkl. USt.
-
Kaufpreis250.000 EUR
Energieausweis
-
EnergieausweistypVerbrauchsausweis
-
Gültig bis21.07.2035
-
GebäudeartWohngebäude
-
Baujahr lt. Energieausweis2002
-
PrimärenergieträgerÖl
-
Endenergieverbrauch96,10 kWh/(m²·a)
-
EnergieeffizienzklasseC
Objektbeschreibung
Beschreibung
Bei der angebotenen Immobilie handelt es sich um ein Einfamilienhaus, welches im Jahre 1962 in Holzständerbausweise auf einem Erbbaugrundstück errichtet wurde.
Mit einer Wohnfläche von ca. 109 m² bietet dieses Einfamilienhaus ein durchdachtes Raumkonzept, welches sowohl funktional als auch gemütlich ist.
Von außen präsentiert sich die Immobilie mit einer weißen Fassade, welche sich im oberen Teil durch braune Schindeln absetzt. Das Satteldach mit dunklen Pfannen rundet die Außenwirkung optimal ab.
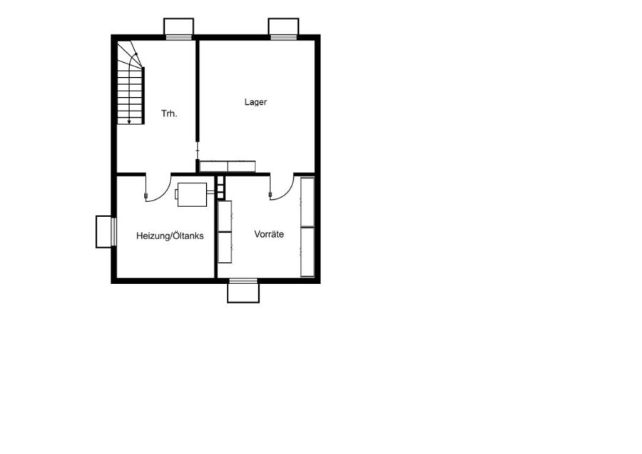
Das Einfamilienhaus verfügt über einen praktischen Spitzboden sowie einen Teilkeller mit ausreichenden Stauflächen. Im Teilkeller befindet sich zudem die Ölheizung aus dem Jahre 2002 mitsamt Öltanks zur Beheizung und Warmwasserversorgung des Hauses.
Die großzügige, direkt mit dem Wohnhaus verbundene Garage ist über eine gepflasterte Auffahrt bequem zu erreichen.
Der jährlich zu zahlende Erbbauzins beträgt aktuell EUR 1.056,12 mit einer Restlaufzeit von ca. 35 Jahren.
Wichtig für Sie:
Es sind Asbest-Zement-Fassadenplatten verbaut.
Ausstattung
Beim Betreten der Immobilie werden Sie von einer großzügigen Diele empfangen, welche Platz für eine Garderobe bietet. Von hier aus gelangen Sie in alle Räumlichkeiten. Eine Treppe führt Sie linker Hand in den Teilkeller, welcher über Stauraum und die Heizanlage mitsamt Öltanks verfügt.
Rechter Hand des Flures sind insgesamt vier Schlaf-, Kinder- oder Gästezimmer vorhanden, welche allesamt durch eine angenehme Größe sowie gute Lichtverhältnisse überzeugen. Die Skellettbauweise bietet darüber hinaus diverse Möglichkeiten zur individuellen Gestaltung.
Ein praktisches Gäste-WC sowie das gegenüberliegende Vollbad befinden sich im vorderen Bereich des Hauses. Das Vollbad verfügt über eine Dusche und eine Badewanne sowie einen praktischen Handtuchheizkörper.
Im hinteren Bereich des Hauses befindet sich die Küche mit anliegendem Essbereich. Mit wenig Aufwand ließe sich die Küche zu diesem Bereich öffnen, um eine moderne Wohnsituation zu schaffen.
Der angrenzende, lichterfüllte Wohnbereich ermöglicht vielfältige Gestaltungsmöglichkeiten. Von hier aus gelangen Sie auf die überdachte Terrasse mit Blick in den grünen Garten.
Das blickdicht bewachsene Grundstück grenzt an einer ruhig gelegenen Straße und ist über eine Auffahrt, welche in die Garage führt, zu erreichen. Alter Baumbestand umgibt das Grundstück und sorgt für einen natürlichen Lärm- und Sichtschutz.
Der pflegeleicht gestaltete Garten schafft einen geschützten Außenbereich und ergänzt das Einfamilienhaus auf harmonische Weise.
Lage
Reinbek - die "Stadt im Grünen", liegt im Speckgürtel von Hamburg und bietet derzeit ca. 28.000 Einwohnern eine attraktive Infrastruktur mit Ärzten, Apotheken, Restaurants, Supermärkten sowie Dienstleistungsbetrieben aus allen Branchen. Kindergärten, Grundschulen und weiterführende Schulen sind ebenso vorhanden wie ein vielfältiges Angebot an Kindertageseinrichtungen.
Das Reinbeker Schloss, das Theaterforum, die Volkshochschule, ein Hallenbad und ein Natursee sowie verschiedene Vereine, Verbände und mehrere Sportstätten in der unmittelbaren Umgebung bieten attraktive Möglichkeiten zur Freizeitgestaltung. Mit dem St. Adolf-Stift verfügt Reinbek auch über ein modernes Krankenhaus. Der nahgelegene Sachsenwald, das größte Waldgebiet Schleswig-Holsteins, lädt zu Ausflügen ein.
Die Hamburger Innenstadt steuert man mit dem PKW über die B5 oder mit der S-Bahn in ca. 30 Fahrminuten an. Die Auffahrten zur A24 Hamburg-Berlin und zur A1 Hamburg-Lübeck sind ebenfalls schnell erreichbar.
Die dargestellte Position der Immobilie ist nur eine ungefähre Angabe.















