Herrschaftliches Wohnen: „Charmante Landhausvilla mit Charakter in Hamburg-Lohbrügge“
21031 Hamburg-Lohbrügge, Einfamilienhaus zum Kauf
Kontaktdaten
-
NameHerr Mika Leon Beyer
-
FirmaPIPPING Immobilien GmbH & Co. KG - Filiale Reinbek
-
AnschriftBahnhofstraße 12
21465 Reinbek -
E-Mail
-
Telefon
-
Telefon
-
Mobil
-
Fax+49 40 40 11 33 6 - 29
Objektdaten
-
Objekt IDHR-251912576
-
ObjekttypenEinfamilienhaus, Haus
-
Adresse21031 Hamburg-Lohbrügge
-
Wohnfläche ca.210 m²
-
Grundstück ca.1.475 m²
-
Nutzfläche ca.127 m²
-
Zimmer7
-
Wesentlicher EnergieträgerÖl
-
Baujahr1927
-
ProvisionspflichtigJa
-
Käuferprovision3,125 % inkl. USt.
-
Kaufpreis895.000 EUR
Energieausweis
-
EnergieausweistypBedarfsausweis
-
Gültig bis22.10.2035
-
GebäudeartWohngebäude
-
Baujahr lt. Energieausweis1990
-
PrimärenergieträgerÖl
-
Endenergiebedarf281,40 kWh/(m²·a)
-
EnergieeffizienzklasseH
Objektbeschreibung
Beschreibung
Diese eindrucksvolle, bürgerliche Landhausvilla aus dem Jahre 1927 präsentiert sich als ein wahres Juwel klassischer Baukunst in ruhiger, grüner Lage. Das Haus vereint auf harmonische Weise den zeitlosen Charme der 1920er Jahre mit den Annehmlichkeiten moderner Wohnkultur.
Von außen besticht die Immobilie durch ihre repräsentative Klinkerfassade, die charakteristische Dachform und zahlreiche historische Details, die den unverwechselbaren Stil dieser Epoche widerspiegeln.
Im Jahre 1995 wurde das Haus um einen Anbau erweitert, der sich architektonisch stimmig in das Gesamtbild einfügt.
Die Beheizung sowie die Warmwasserversorgung erfolgen über eine Öl-Zentralheizung aus dem Jahre 1990. Die Elektroleitungen wurden bereits größtenteils erneuert.
Mit insgesamt ca. 210 m² Wohnfläche bietet das Haus Platz für gehobenes Wohnen – sei es für Paare mit Anspruch an Raum und Stil oder für Familien, die ein Zuhause mit Atmosphäre suchen.
Die Immobilie befindet sich in einem teilweise renovierungs- und sanierungsbedürftigen Zustand.
Um die Privatsphäre der aktuellen Bewohner zu schützen, werden die Innenaufnahmen der Wohnräume im Ober- und Dachgeschoss nur im Exposé veröffentlicht – die Immobilie wird frei übergeben.
Ausstattung
Bereits beim Betreten des Hauses spüren Sie den besonderen Charme – großzügige Raumhöhen, feine Stuckelemente und ein harmonisches Zusammenspiel von klassischen und modernen Details schaffen ein Wohnambiente mit Stil und Atmosphäre.
Die Wohnräume präsentieren sich ebenso hell wie freundlich und verleihen dem Interieur somit eine luftige Großzügigkeit. Originale Holzdielenböden, welche in allen Wohnräumen gut erhalten sind, unterstreichen den authentischen Charakter des Hauses und verleihen jedem Raum eine warme, einladende Ausstrahlung.
Das Erdgeschoss bietet, verteilt auf vier Zimmer, ein großzügiges Raumgefühl mit weitläufigem Wohn- und Essbereich, der durch hohe Fensterfronten von Licht durchflutet wird. Optional ließe sich dieser mit minimalem Aufwand durch das Öffnen des Nebenraumes, welcher nachträglich durch Rigispsplatten separiert wurde, noch erweitern. Die Ebene wird durch ein stilvolles Duschbad, eine funktionale Küche, ein Entrée sowie einen im Zuge des Anbaus aus 1995 konzipierten Wintergarten abgerundet.
Im Obergeschoss setzt sich das wohnliche Ambiente fort. Hier befinden sich drei vielseitig nutzbare Zimmer sowie ein großzügiges Bad, in welcher Ihnen eine Sauna die Option zur Gestaltung eines privaten Wellnessbereichs eröffnet. Das WC ist separat untergebracht. Eine weitere Küche birgt die Möglichkeit, das Wohnen auf zwei Ebenen zu verteilen.
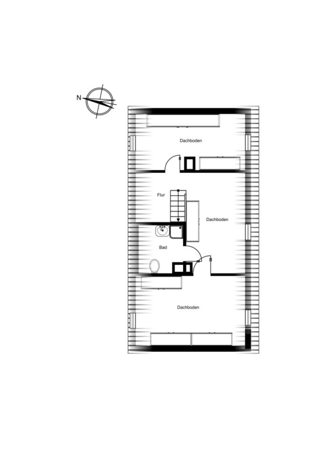
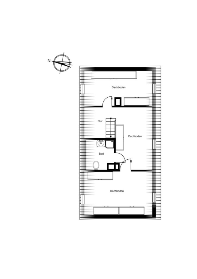
Das wohnlich ausgebaute Dachgeschoss erweitert die Fläche um zwei weitere Räume sowie ein Duschbad. Diese Etage eignet sich ideal als Jugend- oder Gästebereich, oder auch als Rückzugsort für eine individuelle Nutzung.
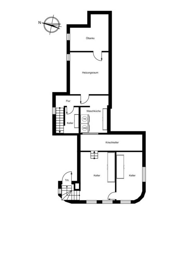
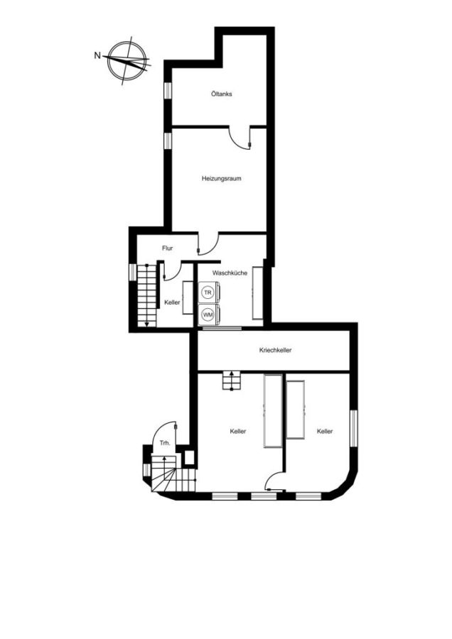
Ergänzt wird die Ausstattung durch den großzügigen Teilkeller, welcher neben dem Heizungraum und einer Waschküche auch ausreichend Platz für Hauswirtschaft und Vorräte beherbergt.
Die Villa besticht durch ihre Authentizität – ein Haus, das Geschichte atmet. Wer Wert auf Atmosphäre, Stil und Raum legt, wird hier ein Zuhause mit Seele und Substanz finden.
Sonstiges
Das parkähnlich angelegte Grundstück mit einer Fläche von ca. 1.475 m² besticht mit einem harmonischen Ensemble aus altem Baumbestand, gepflegten Rasenflächen und dichtem Grün.
Die großzügige Gartenanlage bietet zu jeder Jahreszeit ein Höchstmaß an Privatsphäre und Rückzug – ein idyllischer Ort zum Entspannen, Spielen und Genießen.
Der weitläufige Gartenbereich schafft reizvolle Aufenthaltsorte im Freien. Besonders der Bereich am Wintergarten lädt zu geselligen Stunden im Sommer ein, während der geschützte Garten hinter dem Haus Ruhe und Erholung verspricht.
Durch die gewachsene Bepflanzung fügt sich das Anwesen nahtlos in die grüne Umgebung ein und vermittelt den Charme eines privaten Refugiums mitten im Grünen.
Ein Carport sowie zusätzliche Stellplätze auf dem Grundstück sorgen für komfortables Parken direkt am Haus. Die großzügige Zufahrt und die überlegte Anordnung der Gartenflächen unterstreichen den repräsentativen Charakter des Anwesens und runden das stimmige Gesamtbild dieser besonderen Immobilie ab.
Das Grundstück bietet zudem die Möglichkeit einer Bebauung in zweiter Reihe, welche auf dem Nachbargrundstück bereits realisiert wurde.
Diese Landhausvilla verbindet Tradition, Raum und Lebensqualität auf ideale Weise. Ein Ort mit Geschichte, Charme und Zukunft – perfekt für Liebhaber klassischer Architektur und anspruchsvollen Wohnens.
Lage
Lohbrügge ist ein Stadtteil im Südosten von Hamburg, der zum Bezirk Bergedorf gehört. Sämtliche Infrastruktureinrichtungen wie Kindergärten, alle Schularten, Einkaufsmöglichkeiten für den täglichen Bedarf sowie eine Einkaufspassage mit zahlreichen Fachgeschäften, diverse Ärzte, vielfältige Kultur- und Sportangebote sind in unmittelbarer Nähe bzw. in Bergedorf vorhanden.
Das Naherholungsgebiet Grünes Zentrum mit Kinderspielplätzen, einem Bouleplatz, Grillplätzen und einer Skaterbahn bietet viele Freizeitmöglichkeiten. Im nahegelegenen Sachsenwald sowie in den Boberger Dünen lassen sich ausgedehnte Spaziergänge und Fahrradtouren unternehmen.
In der Hamburger Innenstadt ist man über die B5 oder mit der S-Bahn ab Bergedorf in ca. 25 Minuten. Ein dichtes Busnetz ermöglicht eine schnelle und bequeme Verbindung auch in die angrenzenden Landkreise. Verschiedene Autobahnen (BAB Lübeck-Bremen, Hamburg-Berlin) sind ebenfalls schnell zu erreichen.
Die dargestellte Position der Immobilie ist nur eine ungefähre Angabe.





















