Hamburg-Moorfleet: „Renovierungsbedürftiges Einfamilienhaus auf Erbbaugrundstück“
22113 Hamburg, Einfamilienhaus zum Kauf
Kontaktdaten
-
NameHerr Mika Leon Beyer
-
FirmaPIPPING Immobilien GmbH & Co. KG - Filiale Reinbek
-
AnschriftBahnhofstraße 12
21465 Reinbek -
E-Mail
-
Telefon
-
Telefon
-
Mobil
-
Fax+49 40 40 11 33 6 - 29
Objektdaten
-
Objekt IDMBE-258612394
-
ObjekttypenEinfamilienhaus, Haus
-
Adresse22113 Hamburg
-
Wohnfläche ca.125 m²
-
Grundstück ca.679 m²
-
Zimmer4
-
Wesentlicher EnergieträgerGas
-
Baujahr1986
-
Zustandrenovierungsbedürftig
-
ProvisionspflichtigJa
-
Käuferprovision3,125 % inkl. USt.
-
Kaufpreis285.000 EUR
Ausstattung / Merkmale
- ✓ Carport
Energieausweis
-
EnergieausweistypBedarfsausweis
-
Gültig bis15.07.2035
-
GebäudeartWohngebäude
-
Baujahr lt. Energieausweis1995
-
PrimärenergieträgerGas
-
Endenergiebedarf176,20 kWh/(m²·a)
-
EnergieeffizienzklasseF
Objektbeschreibung
Beschreibung
Bei der hier angebotenen Immobilie handelt es sich um ein Einfamilienhaus, welches im Jahre 1986 in massiver Bauweise auf Holzrammpfählen auf einem Erbbaugrundstück errichtet wurde.
Die Beheizung sowie die Warmwasserversorgung erfolgen über eine Gaszentralheizung der Firma Junkers aus dem Jahre 1995.
Von außen präsentiert sich die Immobilie in einem klassisch norddeutschen Rotklinker, weißen, doppelt isolierverglasten Kunststofffenstern und einem mit rotbraunen Dachpfannen eingedeckten Krüppelwalmdach.
Der jährlich zu zahlende Erbbauzins beträgt aktuell EUR 1.932,00 mit einer derzeitigen Restlaufzeit von 36 Jahren.
Der Erbbaurechtgeber hat sich bereits zu einer potenziellen Verlängerung des Erbbaurechts geäußert. Im Falle einer Verlängerung auf 75 Jahre läge der neue jährliche Erbbauzins gemäß Berechnung vom Februar 2025 bei EUR 3.586,73. Dies entspricht einer monatlichen Erbbauzinszahlung von EUR 298,89.
Ausstattung
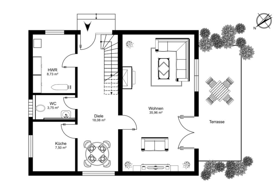
Beim Betreten der Immobilie werden Sie von einer großzügigen Diele in Empfang genommen, an deren Anfang sowie Ende bodentiefe Fensterfronten für eine einladende Atmosphäre sorgen.
Linker Hand, am Ende der Diele, eröffnet sich Ihnen der großzügige, lichterfüllte Wohnbereich. Ein charmanter Kamin sorgt für wohlige Wärme an kalten Tagen. Zudem haben Sie von hier Zugang auf die Terrasse, welche zum Verweilen mit der Familie und Gästen einlädt.
Gegenüberliegend befindet sich die Küche, welche mit einer funktionalen Einbauküche in Vollholz ausgestattet ist. Ein Fenster sorgt hier für optimale Be- und Entlüftung beim Kochen.
Angrenzend steht ein praktisches, hell gefliestes Gäste-WC mit weißen Sanitärobjekten für Besucher bereit.
Der Hauswirtschaftsraum, welcher neben der Heizungsanlage mit dazugehörigem Warmwasserspeicher auch die übrige Haustechnik beherbergt, rundet das Raumangebot im Erdgeschoss ab.
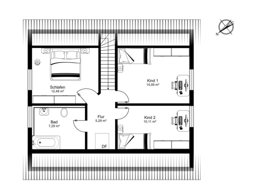
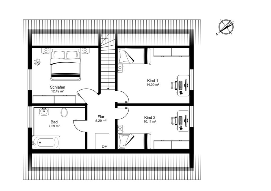
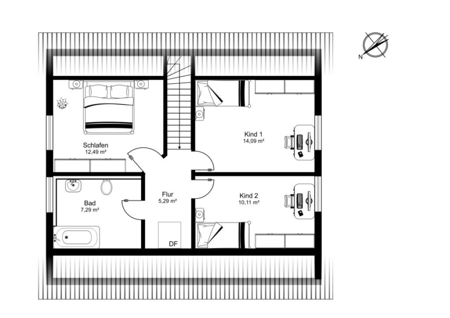
Über eine Holztreppe erreichen Sie das Dachgeschoss, welches drei Zimmer sowie das Badezimmer für Sie bereithält.
Das geräumige Badezimmer überzeugt neben einem Fenster für viel Tageslicht auch mit einer Badewanne sowie einer separaten Dusche.
Diverse Nutzungsoptionen bieten Ihnen die drei gut geschnittenen Zimmer im Dachgeschoss, welche sich als Schlaf-, Kinder-, Gäste- oder auch Arbeitszimmer nutzen ließen.
Das Haus verfügt dank einem Spitzboden sowie einem Kriechkeller über ausreichend Stau- und Lagerfläche.
Grundsätzlich befindet sich die Immobilie in einem renovierungsbedürftigen, jedoch substanziell guten Zustand.
Sonstiges
Das Erbbaurecht umfasst eine äußerst gepflegte Grundstücksfläche von ca. 679 m² und ist blickdicht eingewachsen.
Eingebettet in einer grünen Wohlfühloase lassen sich hier entspannte Stunden im Freien verbringen.
Sie erreichen das Grundstück über eine gepflasterte Zufahrt mit anschließender Zuwegung. Den Bewohnern steht gemäß Erbbaurechtsvertrag die alleinige Nutzung am Carportstellplatz im vorderen Bereich des Nachbargrundstückes zu.
Ein charmanter Holzschuppen bietet ausreichend Platz zur Unterbringung von Gartengeräten und Co.
Diese Immobilie eignet sich ideal für einen Personenkreis, der sich in Zeiten von hohen Immobilienpreisen dennoch den Traum der eigenen vier Wände im Hamburger Stadtbereich verwirklichen möchte.
Lage
Hamburg Moorfleet ist eine ruhige und familienfreundliche Wohngegend am südlichen Stadtrand von Hamburg. Die Lage zeichnet sich durch eine angenehme Mischung aus grünen Flächen, gepflegten Einfamilienhäusern und einer ruhigen Nachbarschaft aus. Die ruhige Lage bietet somit die perfekte Balance zwischen naturnaher Umgebung und städtischer Infrastruktur.
Alle wichtigen Einkaufsmöglichkeiten, Supermärkte und Dienstleister sind bequem erreichbar, sodass Sie Ihren täglichen Bedarf ohne lange Wege decken können.
Für Familien sind Kindergärten, Schulen und Spielplätze in der Nähe vorhanden, was die Gegend besonders attraktiv für Familien macht. Auch medizinische Einrichtungen, Apotheken und Banken sind gut erreichbar.
Die Verkehrsanbindung ist hervorragend: Die Autobahnen A1 und A24 sind schnell erreichbar, was eine schnelle Verbindung in die Hamburger Innenstadt sowie in die umliegenden Regionen ermöglicht. Auch die öffentlichen Verkehrsmittel sind gut ausgebaut, mit Buslinien, die regelmäßig in die Innenstadt und zu anderen Stadtteilen fahren.
Die dargestellte Position der Immobilie ist nur eine ungefähre Angabe.


















