Lassen Sie sich begeistern: „Modernes Wohngefühl in Waldrandlage von Vossmoor“
21039 Escheburg, Einfamilienhaus zum Kauf
Kontaktdaten
-
NameHerr Ben Bode
-
FirmaPIPPING Immobilien GmbH & Co. KG - Filiale Reinbek
-
AnschriftBahnhofstraße 12
21465 Reinbek -
E-Mail
-
Telefon
-
Telefon
-
Mobil
-
Fax+49 40 40 11 33 6 - 29
Objektdaten
-
Objekt IDBEB-2571212856
-
ObjekttypenEinfamilienhaus, Haus
-
Adresse21039 Escheburg
-
Wohnfläche ca.191 m²
-
Grundstück ca.4.976 m²
-
Nutzfläche ca.64 m²
-
Zimmer5,5
-
Wesentlicher EnergieträgerÖl
-
Baujahr1962
-
Letzte Modernisierung2022
-
Zustandmodernisiert
-
ProvisionspflichtigJa
-
Käuferprovision3,125 % inkl. USt.
-
Kaufpreis732.000 EUR
Ausstattung / Merkmale
- ✓ Carport
Energieausweis
-
EnergieausweistypVerbrauchsausweis
-
Gültig bis17.01.2036
-
GebäudeartWohngebäude
-
Baujahr lt. Energieausweis2007
-
PrimärenergieträgerÖl
-
Endenergieverbrauch178,10 kWh/(m²·a)
-
EnergieeffizienzklasseF
Objektbeschreibung
Beschreibung
Das ca. 4.976 m² große Grundstück zeichnet sich durch eine ruhige Lage und viel Potenzial aus. Umgeben von einer grünen, naturnahen Umgebung, bietet es eine großzügige Fläche mit alten, gut gepflegten Bäumen, darunter imposante Eichen und Kiefern, die angenehmen Schatten spenden und für natürlichen Windschutz sorgen.
Die Südseite des Hauses weist trotz des vorhandenen Baumbestands geeignete Voraussetzungen für die Installation einer Photovoltaikanlage auf.
Ein praktisches Doppelcarport auf dem Grundstück bietet sicheren Platz für Ihre Autos und sorgt für Schutz vor Witterungseinflüssen.
Die weitläufige Fläche eignet sich hervorragend für Gartenliebhaber oder als Ruheoase. Der Garten bietet viel Platz für Freizeitgestaltung und individuelle Gestaltungsmöglichkeiten.
Das Grundstück bietet zudem eine unverbauten Blick auf die umgebende Naturlandschaft und ermöglicht eine perfekte Verbindung von Ruhe und Naturverbundenheit.
Diese Immobilie eignet sich besonders für einen Personenkreis, der großzügiges Wohnen in naturnaher Umgebung schätzt. Die vielseitigen Nutzungsmöglichkeiten bieten ideale Voraussetzungen für Mehrgenerationenwohnen ebenso wie für das Wohnen und Arbeiten unter einem Dach. Naturliebhaber finden hier ein ruhiges Umfeld mit viel Freiraum und individuellen Gestaltungsmöglichkeiten.
Ausstattung
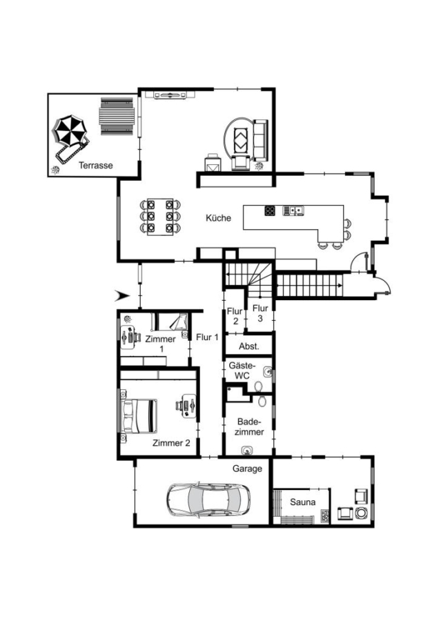
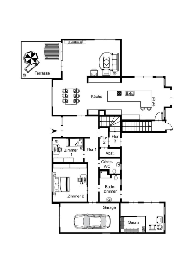
Mit Betreten des Hauses werden Sie von einem lichtdurchfluteten Flur herzlich empfangen.
Linker Hand gelangen Sie in den großzügigen Wohn- und Essbereich, der ausreichend Platz für die ganze Familie bietet und mit bodentiefen Fenstern ausgestattet ist. Ein Kaminofen versorgt den Raum mit einem ganz besonderen Ambiente, wobei das benötigte Kaminholz in Form des eigenen Waldbestands direkt auf dem Grundstück zur Verfügung steht. Von hier aus erreichen Sie die sonnige Terrasse, die zum Verweilen einlädt.
Angrenzend an den Wohnbereich befindet sich die luxuriöse Einbauküche mit der wahrscheinlich längsten Kochinsel Escheburgs. Sämtlichen Elektrogeräte wie unter anderem ein Herd, Backofen, ausfahrbarer Dunstabzug, Geschirrspüler, Weinkühler und Kühlschrank sowie ausreichend Stauraum in Form von Schränken sind vorhanden. Ein separater Gasherd mit eigener Gasversorgung ergänzt die Küchenausstattung.
Zurück im Flur gelangen Sie zu den weiteren Räumlichkeiten des Hauses. Dazu zählen unter anderem ein gemütliches Schlafzimmer und ein Büro sowie die wohnlich ausgebaute Garage. Diese bietet Ihnen entweder den perfekten Rückzugsort, oder eröffnet die Möglichkeit, den Raum als exklusiven Showroom, beispielsweise für eine Harley-Davidson, zu inszenieren.
Ein modernisiertes Gäste-WC sowie Duschbad mit Zugang zum Garten lassen keinerlei Wünsche offen. Doch das ist noch nicht alles: Durch den Garten gelangen Sie zu einem Highlight des Hauses – dem Saunabereich.
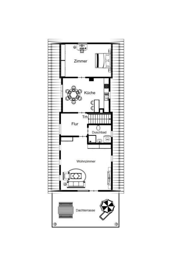
Das Dachgeschoss erreichen Sie entweder über eine Verbindungstür im Flur, oder alternativ über einen zweiten Außenzugang. Im Dachgeschoss angelangt erwartet Sie eine zweite, vollausgestattete Einheit.
Rechter Hand befindet sich eine moderne Einbauküche inklusive Essbereich mit charmantem Holztragwerk. Nach einem leckeren Essen können Sie sich im angrenzenden Schlafzimmer zur Ruhe legen.
Das Badezimmer ist über den Flur schnell erreichbar und mit dunklen Bodenfliesen, sämtlichen Sanitäranlagen sowie einem Waschmaschinenanschluss ausgestattet. Ein Velux-Fenster sorgt für frische Luft.
Linker Hand des Flurs gelangen Sie in den Wohnbereich, der ausreichend Platz für eine Sofalandschaft sowie eine weitere Essgelegenheit für Gäste bietet.
Für gemütliche Grillabende steht Ihnen die großzügige Dachterrasse zur Verfügung, die mit viel Platz besticht.
Den Teilkeller des Hauses erreichen Sie über den rückwärtigen Bereich der Küche. Hier erwartet Sie neben der Heizungsanlage auch ein weiterer Abstellraum – ideal für Vorräte.
Sonstiges
Das ca. 1.549 m² große Grundstück zeichnet sich durch eine ruhige Lage und viel Potenzial aus. Umgeben von einer grünen, naturnahen Umgebung, bietet es eine großzügige Fläche mit alten, gut gepflegten Bäumen, darunter imposante Eichen und Kiefern, die angenehmen Schatten spenden und für natürlichen Windschutz sorgen.
Ein praktisches Carport auf dem Grundstück bietet sicheren Platz für Ihr Auto und sorgt für Schutz vor Witterungseinflüssen.
Die weitläufige Fläche eignet sich hervorragend für Gartenliebhaber oder als Ruheoase. Der Garten bietet viel Platz für Freizeitgestaltung und individuelle Gestaltungsmöglichkeiten.
Die ruhige Lage inmitten der Natur garantiert Privatsphäre und lädt zu Erholung und Entspannung ein.
Das Grundstück bietet zudem eine unverbauten Blick auf die umgebende Naturlandschaft und ermöglicht eine perfekte Verbindung von Ruhe und Naturverbundenheit
Lage
Die ruhige und naturnahe Gemeinde Vossmoor, besticht durch ihre idyllische Lage und die Nähe zum Naturschutzgebiet Besenhorster Sanddüne.
Diese Umgebung mit den 30 Meter hohen Sanddünen bietet eine wunderschöne, grüne Idylle und zahlreiche Freizeitmöglichkeiten wie Wandern, Reiten und Radfahren.
Die reizvolle umliegende Landschaft und das etwa 12 Gehminuten entfernte Naturbad Altengamme bieten ideale Möglichkeiten für ausgedehnte Spaziergänge, Erholung und spannende Entdeckungstouren.
Escheburg ist nur etwa 1,5 km entfernt und bietet eine gute Infrastruktur mit Einkaufsmöglichkeiten, Schulen und Ärzten. In nur 10 Minuten erreichen Sie den beliebten Freizeitbereich mitsamt des vor kurzem sanierten Freizeitbades Geestacht an der Elbe.
Die Anbindung an Hamburg ist ebenfalls hervorragend, das Stadtzentrum erreichen Sie in nur etwa 30 Minuten mit dem Auto.
Der öffentliche Nahverkehr ist ebenfalls gut erreichbar – eine Bushaltestelle befindet sich nur 150 Meter entfernt, und die nächste Autobahnanbindung ist in wenigen Minuten zu erreichen.
Die dargestellte Position der Immobilie ist nur eine ungefähre Angabe.






















