In bester Lage: „Attraktives Geschäftshaus mit großem Potenzial“
21029 Hamburg, Bürohaus zur Miete
Kontaktdaten
-
NameFrau Grete Heeschen
-
FirmaPIPPING Immobilien GmbH & Co. KG - Filiale Reinbek
-
AnschriftBahnhofstraße 12
21465 Reinbek -
E-Mail
-
Telefon
-
Telefon
-
Fax+49 40 40 11 33 6 - 29
Objektdaten
-
Objekt IDVM-GH3447
-
ObjekttypenBüro/Praxis, Bürohaus
-
Adresse21029 Hamburg
-
Nutzfläche ca.715 m²
-
Bürofläche ca.715 m²
-
Büroteilfläche ca.715 m²
-
Vermietbare Fläche ca.715 m²
-
Wesentlicher EnergieträgerÖl
-
Baujahr1973
-
Verfügbar abnach Vereinbarung
-
Stellplätze gesamt2
-
ProvisionspflichtigJa
-
Mieterprovision (gewerblich)3 Nettomieten zzgl. USt.
-
Kaution21.450,00 EUR
-
Kaltmiete7.150,00 EUR
-
Nebenkosten2.500,00 EUR
-
Warmmiete9.650,00 EUR (Heizkosten enthalten)
Energieausweis
-
EnergieausweistypBedarfsausweis
-
Gültig bis21.10.2028
-
GebäudeartNichtwohngebäude
-
Baujahr lt. Energieausweis2005
-
Wesentlicher EnergieträgerÖl
-
Endenergiebedarf Strom16,70 kWh/(m²·a)
-
Endenergiebedarf Wärme179,30 kWh/(m²·a)
-
EnergieeffizienzklasseF
Objektbeschreibung
Das Geschäftshaus aus dem Jahre 1973 befindet sich in zentraler Lage von Hamburg-Bergedorf, mitten in der belebten Fußgängerzone. Die Fassade aus weißem Klinker und die großzügigen, bodentiefen Schaufenster im Erdgeschoss, sorgen für eine hervorragende Sichtbarkeit und einen repräsentativen Auftritt.
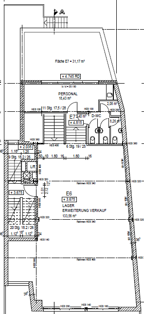
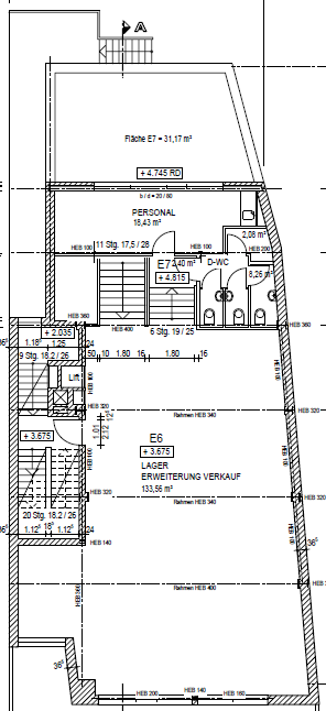
Auf einer Gesamtfläche von rund 715 m² Nutzfläche bietet das Gebäude vielseitige Möglichkeiten. Das Erdgeschoss und das erste Obergeschoss sind als zusammenhängende Verkaufs- oder Dienstleistungsflächen konzipiert und verfügen über integrierte Zwischenetagen, die eine zusätzliche Raumhöhe und flexible Aufteilungsmöglichkeiten schaffen.
Das zweite Obergeschoss eignet sich ideal für Büro- oder Praxisflächen. Hier befinden sich zudem die WCs sowie ein Mitarbeiterraum. Das Dachgeschoss sowie das Kellergeschoss bieten praktische Lagerflächen, die über einen vorhandenen Lastenaufzug erreichbar sind. Eine Klimaanlage ist vorhanden, diese muss jedoch ebenfalls wie der Lastenaufzug geprüft und ggf. instand gesetzt werden.
Diese Immobilie befindet sich äußerlich in einem gepflegten Zustand und bietet durch seine offene, flexible Raumstruktur großes Potenzial für eine zeitgemäße Nutzung. Die Innenräume befinden sich in einem renovierungsbedürftigen Zustand, wodurch zukünftige Mieter ihre individuellen Gestaltungsideen und Einrichtungskonzepte umsetzen können.
Das Gebäude verfügt zudem über zwei PKW-Stellplätze im Hinterhof, die den Standort auch für Mitarbeiter attraktiv machen.
Die Beheizung erfolgt über eine Gaszentralheizung. Die Versorgerverträge sind vom Mieter selbst abzuschließen und abzurechnen.
Dieses Geschäftshaus eignet sich hervorragend für Unternehmen, Praxen oder Einzelhändler, die einen repräsentativen Standort mit vielfältigen Gestaltungsmöglichkeiten suchen.
Lage
Bergedorf ist ein Stadtteil von Hamburg mit über 135.000 Einwohnern, darunter viele Familien mit Kindern. Bergedorf wächst durchschnittlich um ca. 1,5 % (1.500 – 2.000 Einwohner) pro Jahr und verfügt über eine sehr gute Infrastruktur mit attraktiven Shoppingmöglichkeiten, einem eigenen Theater mit integrierter Kulturstätte der Körber Stiftung sowie einer denkmalgeschützten Sternwarte. Zudem verfügt Bergdorf über zwei Krankenhäuser, dem Bethesda sowie dem Unfallkrankenhaus Boberg. Das Bergedorfer Schloss ist das einzige Schloss in Hamburg und wurde im 13. Jahrhundert als Wasserburg an der Bille angelegt und stellt das Bergedorfer Wahrzeichen dar. Die Bergedorfer Innenstadt ist von sehenswerten, gut erhaltenen Fachwerkhäusern geprägt. Die Wirtschaft ist mittelständisch geprägt, der Schwerpunkt liegt auf Handwerksbetrieben. Die größten Unternehmen sind Hamburger Universelle (Hauni) mit ca. 2.000 Mitarbeitern am Stammsitz Bergedorf und das BG Klinikum Hamburg (Unfallkrankenhaus Boberg) mit ca. 2.600 Mitarbeitern. Weiterhin befinden sich ein großer Forschungs- und Innovationspark mit drei Fraunhofer-Instituten in Bergedorf sowie große Logistikbetriebe im Gewerbegebiet Bergedorf-Allermöhe. Die insgesamt starke Wirtschaft mit vielfältigen Dienstleistungen prägt Bergedorf. Gleichzeitig verleihen großzügige Grün- und Sportanlagen Bergedorf einen hohen Freizeitwert.
Sämtliche Schulformen und Kindergärten sind fußläufig bzw. mit dem Fahrrad erreichbar. Abwechslungsreiche Sport- und Freizeitmöglichkeiten bieten der TSG Bergedorf, die nahegelegenen Golf-, Tennis- und Hockeyclubs, zahlreiche Reitanlagen in der Umgebung, das Bergedorfer Gehölz sowie das Bille-Bad. Hierzu gehört ebenfalls die Vier- und Marschlande mit vielen Gartenbaubetrieben im Schwerpunkt Blumen- und Pflanzenanbau.
In ca. 20 Minuten erreicht man sowohl mit der S-Bahn als auch mit dem PKW bequem die Hamburger Innenstadt. Ebenfalls verkehrsgünstig gelegen sind die Anschlussstellen an die A1 (Lübeck–Bremen) sowie A24 (Hamburg–Berlin).
Die dargestellte Position der Immobilie ist nur eine ungefähre Angabe.








